Медитативный интерьер с яркими деталями и живыми растениями
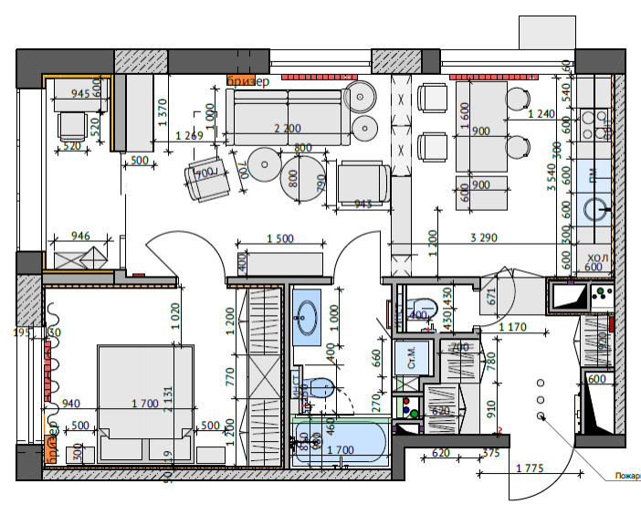
ЖК Riverpark , площадь 60кв.м. Квартира для молодой пары. Изначально клиенты хотели лаконичное чистое пространство, использовать как можно больше натуральных материалов и как можно больше ярких цветов. По просьбе клиентов, мы использовали много цвета. Прежде всего яркую плитку под терраццо и дальше цвет из плитки использовали в мебели: диване, стульях, кухне и тд. И все же, цвет здесь не бросается в глаза, он растворен в интерьере через белый фон. Цвет здесь - как и хотели клиенты не акцент, но элемент, создающий радостное, веселое настроение. При этом итоговый интерьер сами клиенты назвали медитативным, расслабляющим, успокаивающим. Такого влияния мы достигли за счет лаконичности форм, ощущения простора и воздуха везде, обилия дерева и живых растений. Центральным и любимым элементом клиентов, гостей стала перегородка для растений, разделяющая кухню и гостиную. Изначально, нам просто нужно было что- то достаточно весомое, чтобы зонировать пространство, но достаточно легким, чтобы не загромождать место, чтобы комната кухни-гостиной казались единым большим воздушным пространством. Дальше мы поняли, что хотим как можно больше растений, но места для них не хватает. В перегородку встроена подсветка для роста растений и изначально мы даже планировали сделать автополив, воду можно было легко подвести из санузла за стенкой. Мы продумали где спрятать насос и бак для воды для полива… Но в итоге клиенты решили, что самостоятельно поливать цветы даже приятнее и мы просто поставили горшки с автополивом, которые не нужно часто поливать, горшки прячутся в глубоких полках-ящиках, так что их не видно, все смотрится лаконично. У клиентов много хобби и увлечений из-за чего было очень много задач по хранению. В частности, в квартире нужно было уместить: сноуборды, коллекцию книг, коллекцию виниловых пластинок, технику для готовки на кухне, инвентарь для занятий йогой, и даже диджей пульт! При этом квартира была не самая большая: 62 квадратных метра и очень хотелось оставить 2 санузла, а не превращать один в кладовку. Нам удалось спрятать множество зон хранения во встроенных шкафах. В квартире целых 6 шкафов, не считая кухни и открытых стеллажей. Но когда просто ходишь по квартире обилие шкафов вообще не ощущается. В прихожей практически все стены заняты системами хранения, но где-то они сделаны в цвет стен, где-то - прячутся за зеркальными фасадами. В гостиной в самой перегородке хранения мало - только открытые полки у обеденного стола и у дивана для мелочей. Но зато есть еще целый шкаф от пола до потолка у балкона, притворяющийся просто частью архитектуры пространства. В нем уместились инвентарь для йоги, диджей пульт, большая часть книг и виниловых пластинок. Рядом на балконе есть еще и открытый стеллаж, в котором тоже хранятся книги и пластинки. Стеллаж сделан по проекту дизайнеров. Так как его торец хорошо просматривается и даже является видовой точкой - мы постоянно смотрим на него когда идем из прихожей или кухни в гостиную, ванную, спальню - мы развернули часть полок стеллажа к смотрящему. На них можно и нужно ставить только что-то самое красивое - цветы, скульптуры, лучшие пластинки и книги, большая же часть стеллажа - видна только с балкона и уже более функциональна. Кухня и шкаф в спальне - от стены до стены и от пола до потолка, лаконичные, со встроенными ручками, за счет этого совсем не заметные и очень вместительные. В ванной в нише за встроенными дверцами спрятались стиральная и сушильная машинки, водонагреватель, средства для стирки и уборки. Декор: КубКвадрат Татьяна Понамарева и Ольга Елизарова Фото: Варвара Топленникова
56 фотографий



















































