УЮТНЫЙ ПЕНТХАУС ДЛЯ ДВОИХ
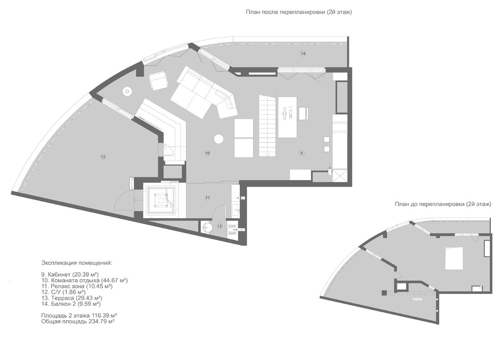
Заказчики выбрали стиль парижских квартир, поэтому за основу мы взяли современную французскую стилистику, для создания которой характерные приемы: лепнину на стенах, французскую «елочку», высокие окна и двери. Мы стремились сформировать атмосферу легкости и элегантности, выжимая пользу из каждого квадратного метра. Наличие больших французских окон обеспечили изменением планировки и перестройкой наружной стены. Гостиная, столовая, кухня - одно много перспективное пространство, разделителем которого является небольшой дверной простенок. Все архитектурные вмешательства улучшили световые характеристики помещения, сделали его более функциональным и уютным. Особый шарм интерьеру придает синтез фактур и стилей, а также актуальные цветовые сочетания.
36 фотографий





































