
Дизайнеры интерьера
0
УЮТНЫЙ ПЕНТХАУС ДЛЯ ДВОИХ
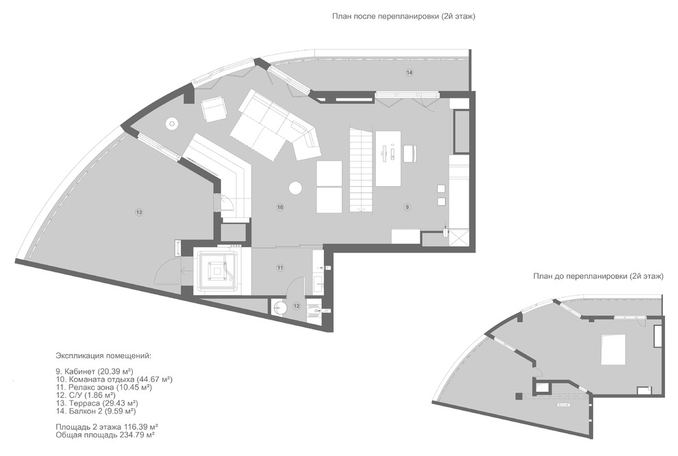
Заказчики выбрали стиль парижских квартир, поэтому за основу мы взяли современную французскую стилистику, для создания которой характерные приемы: лепнину на стенах, французскую «елочку», высокие окна и двери. Мы стремились сформировать атмосферу легкости и элегантности, выжимая пользу из каждого квадратного метра. Наличие больших французских окон обеспечили изменением планировки и перестройкой наружной стены. Гостиная, столовая, кухня - одно много перспективное пространство, разделителем которого является небольшой дверной простенок. Все архитектурные вмешательства улучшили световые характеристики помещения, сделали его более функциональным и уютным. Особый шарм интерьеру придает синтез фактур и стилей, а также актуальные цветовые сочетания.
Другие фотографии в проекте
Вопросы к фото 0
Задайте вопрос
Вам ответят эксперты. Пришлем уведомление, когда вам ответят
Похожие фотографии

Квартира на ул. Чернышевского, "Амалиенау Хаус"
Вера Кирюхина

Квартира Химки
ADEGO MEBEL

Квартира, вдохновленная Кандинским. ЖК "Яуза парк"
Анастасия Дубовских

Общий вид на гостиную и обеденную зону
Наталья Корнюхина

Фотосъёмка квартиры. Дизайнер Екатерина Плотникова
Александр Вавилов

162_Сердце_Столицы
Реализованный проект квартиры на 36 этаже в одной из башен ЖК Сердце Столицы. Объединение двух квартир в одну двухуровневую.
FLIK Дизайн бюро

Апартаменты в ЖК Флотилия
Апартаменты с огромной лоджией для семьи из трех человек, в новостройке, на севере Москвы, ЖК Флотилия. Основной задачей, при проектировании квартиры, было создать интерьер в современном стиле с минимумом мебели, декора. Вид из окон
Юлия Савельева

Квартира 99 м2 ЖК Родной город. Воронцовский парк в современном стиле
Статья в Houzz Журнале "Поиск планировки: 8 вариантов (!) + финал для московской «двушки»": https://www.houzz.ru/statyi/poisk-planirovki-8-variantov-final-dlya-moskovskoy-dvushki-stsetivw-vs~137857871?utm_source=Houzz&utm_campaign=u14402&utm_medium=email&utm_content=gallery3_4&newsletterId=14402
Ксения Блохина

N6
Квартира для дамы элегантного возраста, которая любит готовить, принимать гостей и собирать фарфоровые статуэтки. .
Елена Никулина

N6
Квартира для дамы элегантного возраста, которая любит готовить, принимать гостей и собирать фарфоровые статуэтки. .
Елена Никулина

Долгая дорога к соснам
Дом - уединенное место для жизни. Место силы для сильного, состоявшегося человека и его семьи. Место для созерцания. Высокие и просторные комнаты.Функциональная планировка. Полные воздуха и света помещения. Огромные проемы окон – бесконечно сменяющие друг-друга картины. Окна, за которыми и искрящийся снег и ураган, сгибающий сосны до земли. Ничего не препятствует проникновению природы, её красок и фактуры в интерьер. Повторение фактур материалов фасада и леса вокруг в интерьере. Лаконичная отделка. Минималистичная меблировка. Использование натуральных материалов.
Yuliya Pesheva

apartment
Екатерина Гурари




