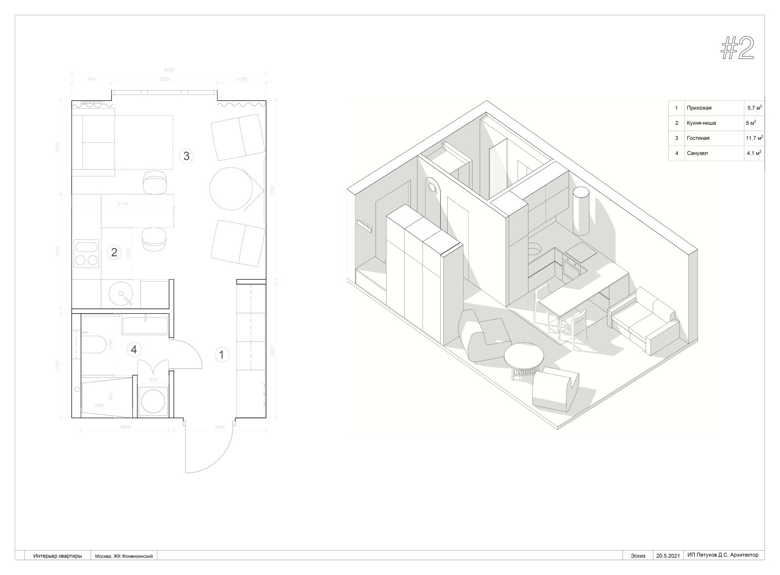
Студия в ЖК Фонвизинский, 25 кв.м
Реализован. Проект студии для студента - это лаконичное высказывание про баланс яркости, функциональности и целостности композиции. Основа - это интерьерные фасад из кухонного гарнитура яркой глубокой арки, связывающей прихожую и жилую зону.
Год реализации: 2021
Стоимость проектирования: 34 999 ₽
Стиль: Чешский
г. Москва, 18 улица Фонвизина, Северо-Восточный административный округ
29 фотографий





























