Реализованный таунхаус 390 кв.м в Одинцовском районе
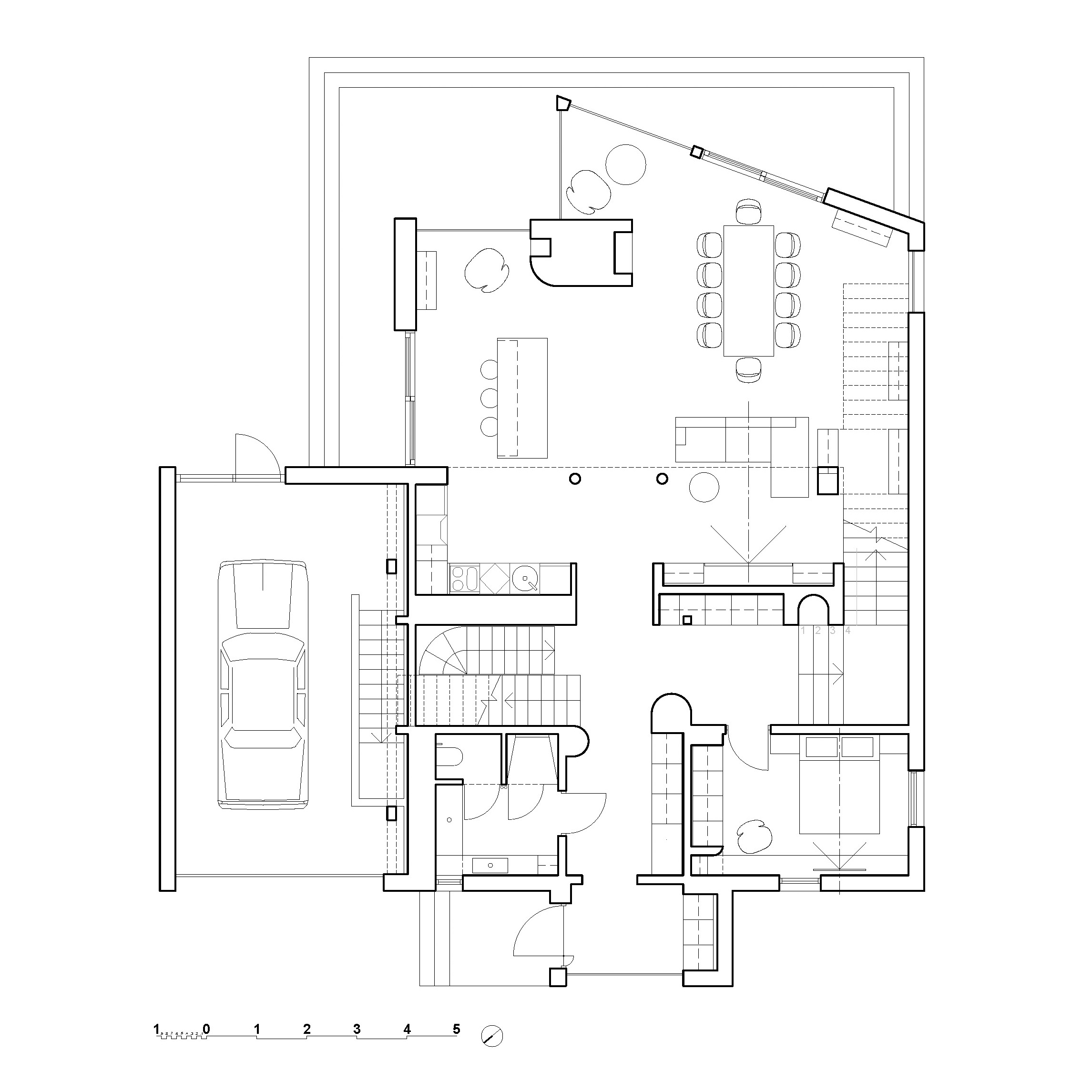
Реализован. Шорт-лист премии ADD Awards 2025. Таунхаус спроектирован индивидуально для матери и сына. Проект начался с реконструкции типового деревянного дома с мансардным этажом. Клиент хотел расширить гостиную, преобразить тесные спальни второго этажа и закрыть обзор с соседних домов. Пространство под скатной крышей в спальнях настолько не отвечало требованиям, что архитектор решил целиком демонтировать старую крышу вместе со стенами второго этажа. В итоге, на базе сруба первого этажа, словно кристалл, был выращен новый дом. Внутри старых стен сконцентрировались прихожая, гостевая комната санузел и распределительный холл. Гостиная первого этажа была расширена в сторону участка. Второй этаж вырос из новых границ гостиной, получив высокие потолки, панорамное остекление и просторные помещения. Новый второй этаж дома разделён пополам на зоны для матери и сына. В каждую зону с первого этажа ведёт своя лестница: это позволяет разделить разные ритмы жизни. При этом из спальни матери в спальню сына можно пройти через сквозной проход в гардеробе. Внутреннее устройство дома тесно взаимосвязано с композицией экстерьера, которая строится из двух основных объёмов. Белый высокий остеклённый фасад острым углом выступает к участку: это основной объём, внутри которого расположены гостиная и спальни. Сбоку в него врезается блок со скруглением. Своими глухими фасадами из вертикального планкена он закрывает интерьеры спален от посторонних взглядов из соседних домов и с дороги. Внутри блок состоит из санузлов при спальнях и игровой комнаты сына. Под деревянным блоком расположен гараж. Расположение старых стен выявлено в отделке горизонтальным планкеном. Со стороны дороги фасад дома – это стена с проработанным сопряжением крупных форм и композицией из маленьких оконных проёмов. Структура экстерьера дома стоит на страже приватности хозяев. Дом сдержанно выглядывает из-за ворот ромбовидным окошком игровой, а к участку раскрывается динамичной пластикой так, что с любого ракурса силуэт дома выглядит уникально.
19 фотографий



















