ALAGIR. Интерьер квартиры 85 кв.м в Алматы
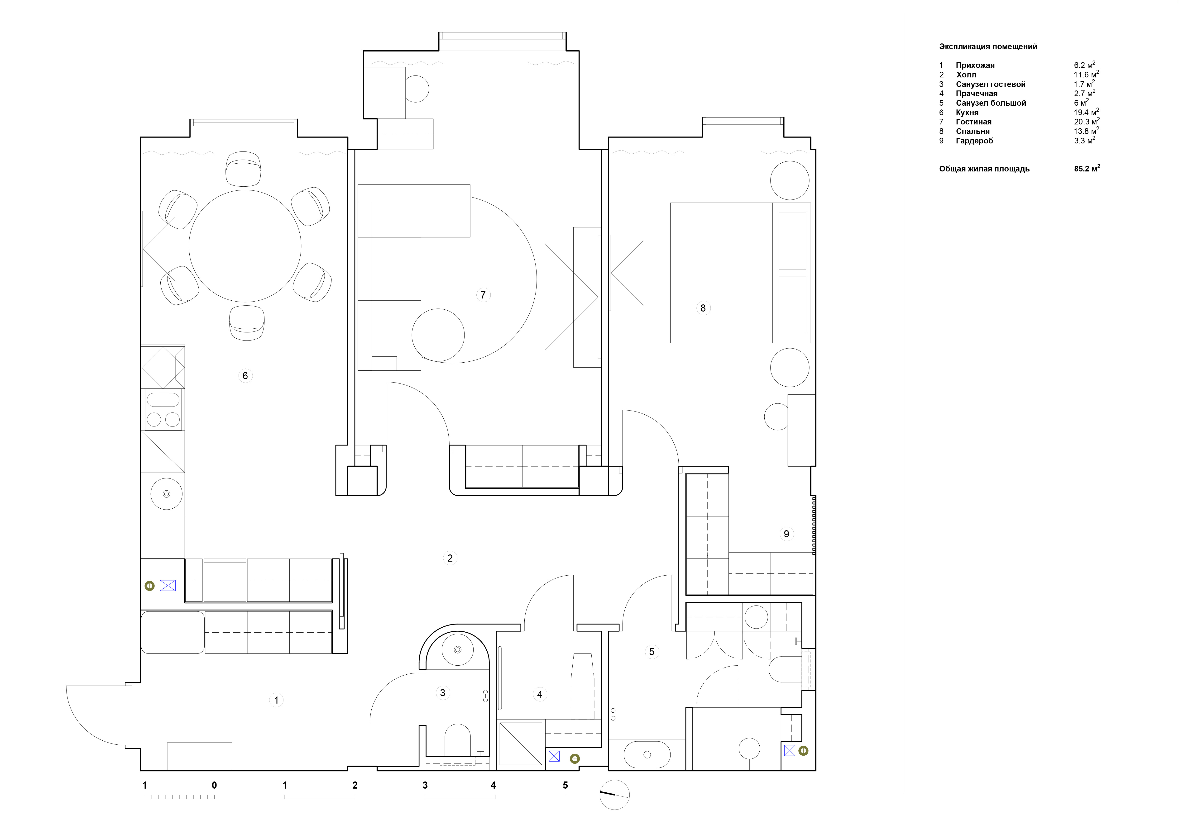
Реализован. Шорт-лист премии ADD Awards 2025. Интерьер квартиры разработан для сдачи в аренду с акцентом на функциональность и гибкость планировки, что расширяет целевую аудиторию. Важным условием было обеспечить изолированность всех комнат, при этом сохранить единую пространственную композицию. Дополнительной задачей стало решение проблемы двух несущих колонн в центре квартиры и организация естественного освещения: все окна выходят на одну сторону, а глубина пространства достигает девяти метров. Жилой пояс включает кухню со столовой, гостиную с рабочей зоной у окна и спальню с гардеробной нишей. Гостиная при необходимости трансформируется во вторую спальню или детскую, а столовая в кухне — в гостиную. Вдоль противоположной стены размещён служебный пояс: прихожая с крупным встроенным шкафом, гостевой санузел, изолированная прачечная и блок с душевой и хозяйственными отсеками. Компактное объединение функциональных зон подчеркнуто рифлёной отделкой и плавно скруглённым углом, формирующим композиционный акцент. Холл соединяет жилой и служебный пояса. Входы в гостиную и спальню оформлены высокими порталами со скруглёнными углами, внутри которых спрятаны двери с безрамными фрамугами. Раздвижная перегородка во всю высоту стены ведёт на кухню. В открытом состоянии порталы становятся «окулярами», сквозь которые видны акцентные элементы интерьера, а при закрытых дверях фрамуги сохраняют естественное освещение и лёгкость пространства. Перегородки между холлом и жилыми помещениями скрывают колонны и встроенные шкафы, формируя выразительные объёмы, объединённые с рельефным блоком в пластичную композицию. Отделка поддерживает баланс эстетики и практичности: окрашенные стены, акценты в тёплой охре и текстура дерева, прочное полимерное покрытие рельефных поверхностей, микроцемент в санузлах, зеркала для усиления глубины. Напольные покрытия выделяют функциональные зоны: высокопрочный ламинат в жилых помещениях и керамогранит в остальных.
17 фотографий

















![Тренды в интерьере: стильное оформление квартиры [Дмитрий Петухов]](https://i.ytimg.com/vi/JosD3aeDkN8/maxresdefault.jpg)
