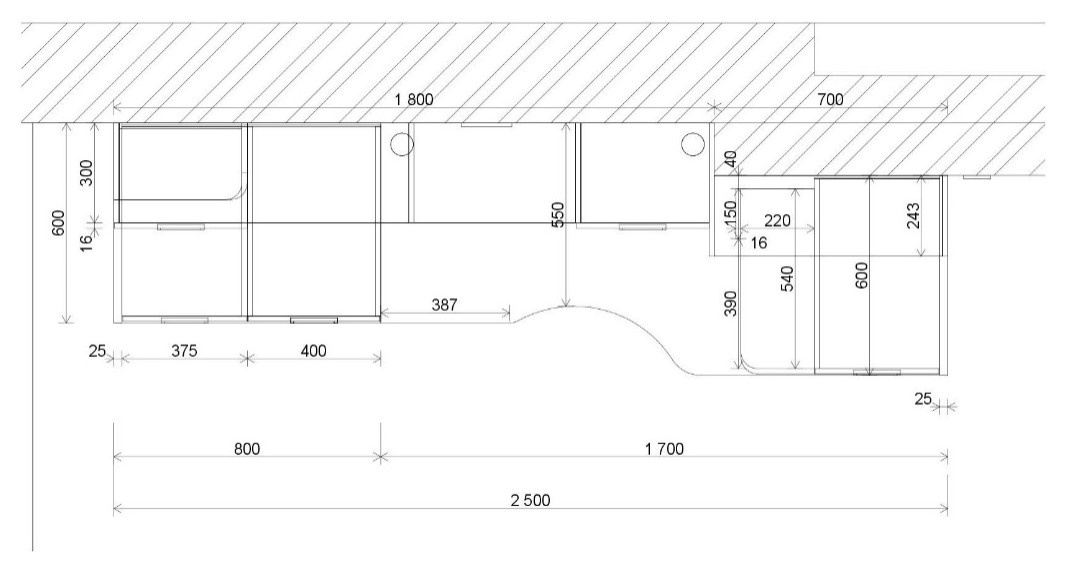
Стол с навесными полками и кровать №1985-21
Стол с навесными полками . . Материалы: . 1) ЛДСП Egger U708 st9 Светло-серый/U788 st9 Арктика серый. . 2) Задняя стенка ХДФ. . 3) Фурнитура Blum. . 4) Направляющие шариковые полного выдвижения (без доводчика). . 5) Мебельные ручки RS056CP/SC.2/128 (Boyard) . 6) FLEX Крепление проводов, арт. 2098.207 (МДМ) – 5 шт. . . Кровать . . Материалы: . 1) ЛДСП Egger U708 st9 Светло-серый/U788 st9 Арктика серый. . 2) Фурнитура Blum. . 3) Направляющие шариковые полного выдвижения 700 мм (без доводчика). . 4) Мебельные ручки RS056CP/SC.2/128 (Boyard)
Год реализации: 2021
8 фотографий








