Шкафы, прихожая и детская №1944-20
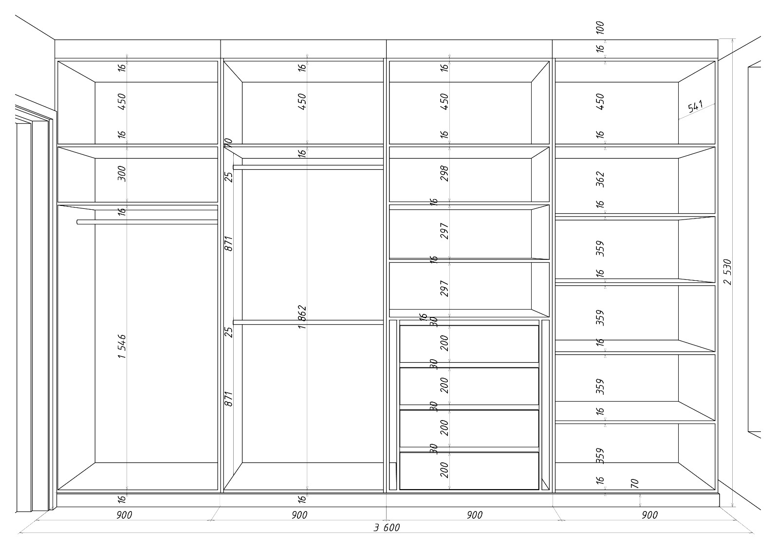
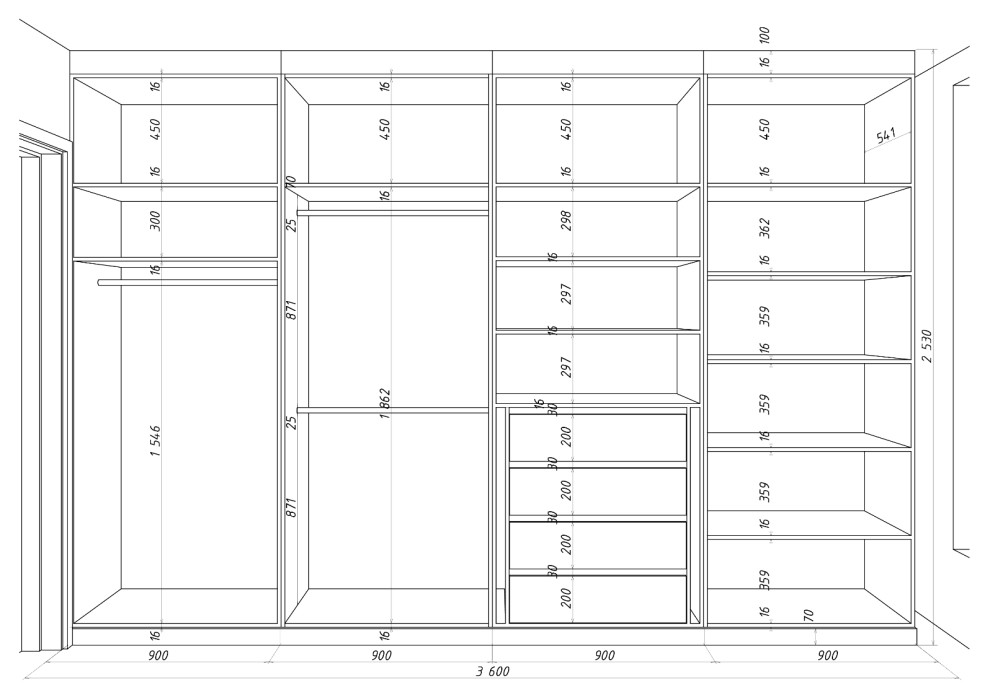
Шкаф-купе прихожая . . Материалы: . 1) Фасады и видимые детали МДФ Эмаль матовая цветRAL 9003. . 2) Наполнение ЛДСП цвет Белый. . 3) Ящики Blum с доводчиком. Дно ЛСДП. Внутренняя высота ящика 140мм. . 4) Штанга для одежды труба D-25мм хром. . . Прихожая . . Материалы: . 1) Видимые детали МДФ Эмаль матовая цвет RAL 9003. . 2) Наполнение ЛДСП цвет Белый. . 3) Задняя стенка ХДФ. . 4) Фасад откидные. . 5) Зеркало серебро в МДФ раме Эмаль матовая RAL 9003. . . Прихожая . . Материалы: . 1) ЛДСП цвет Кроношпан 0112 PE серый камень. . 2) Задняя стенка ХДФ. . 3) Ящики Blum с доводчиком. Дно ЛСДП. Внутренняя высота ящика 140мм. . 4) Штанга для одежды труба D-25мм хром. . 5) Вешало для брюк выдвижное крепление в бок – 2 шт. . 6) Зеркало серебро, выдвижное, на колесной опоре с шариковыми направляющими. . . Гардеробная правая сторона . . Материалы: . 1) ЛДСП цвет Кроношпан 0112 PE серый камень. . 2) Задняя стенка ХДФ. . 3) Ящики Blum с доводчиком. Дно ЛСДП. Внутренняя высота ящика 140мм. . 4) Штанга для одежды труба D-25мм хром. . 5) Вешало для брюк выдвижное крепление в бок – 2 шт. . 6) Зеркало серебро, выдвижное, на колесной опоре с шариковыми направляющими. . . Детская . . Материалы: . 1) Фасады и видимые детали МДФ Эмаль матовая цвет RAL 7047. . 2) Наполнение ЛДСП цвет Кроношпан 0112 PE Серый камень. . 3) Задняя стенка ХДФ. . 4) Ящики Blum с доводчиком. Дно ЛСДП. Внутренняя высота ящика 140мм. . 5) Штанга для одежды труба D-25мм хром. . . Детская . . Материалы: . 1) Фасады и левый бок шкафа МДФ Эмаль матовая цвет RAL 5019. . 2) Наполнение шкафа, стол, открытый пенал ЛДСП цвет Кроношпан 8100 SM Белый Жемчуг. . 3) Задняя стенка ХДФ. . 4) Ящики Blum с доводчиком. Дно ЛСДП. Внутренняя высота ящика 140мм. . 5) Штанга для одежды труба D-25мм хром. . 6) Ручка интегрированная.
21 фотография





















