СOMFORT
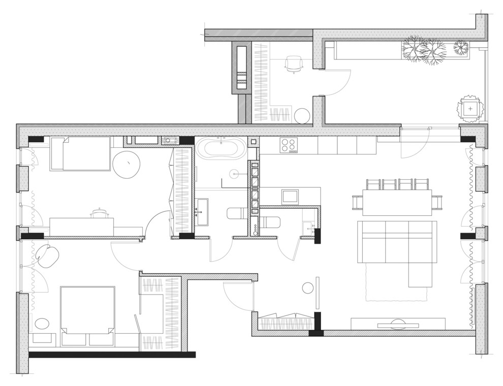
Квартира находится в комплексе-Комфрот таун. Исходная площадь - 100 м. Заказчики-современная молодая семья с ребенком. Любят путешествовать. Им понравилась одна из наших предыдущих работои,опубликованная на Д-журнале и они к нам обратились. Работать с ними было легко - нашли общий язык. Люди хотели получить удобное, просторное, светлое жилье. Большой вопрос клиента был в реализации террасы. Там нужно было делать ряд строительных работ. . . Автор фото-Лугерина Лилия.
Год реализации: 2015
15 фотографий
















