
Архитекторы
0
СOMFORT
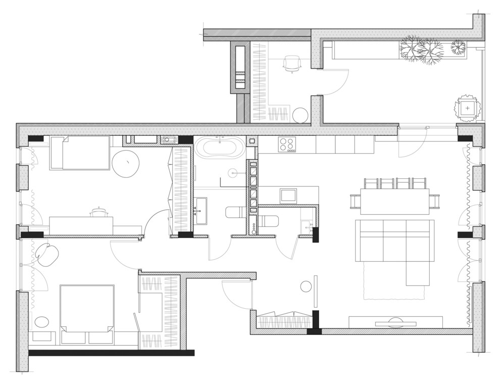
Много изменений в планировку не вносили. добавили хоз комнату на террасе. выровняли архитекутуру комнат. Добавили во взрослую спальню гардероб. в итогу получили к, открытое общее пространство гостиной, кухни и столовой с выходом на террасу. Правильные пропорции спален.
Другие фотографии в проекте
Вопросы к фото 0
Задайте вопрос
Вам ответят эксперты. Пришлем уведомление, когда вам ответят




