Сохраняя традиции
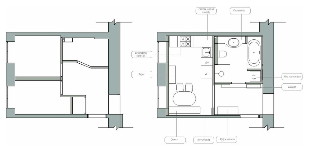
В этом проекте присутствовал очень глубокий исторический контекст - одно из знаковых зданий в Старом Фонде, с видом на Мариинский театр и на Николо-Богоявленский Морской собор. Молодая пара, очень красивые, очень утонченные. Даже фамилия заказчиков была под стать этому великолепию, возможно даже действительно имеющая отношение к знаменитым поэтам России, не знаю точно. Но знаю, что интерьер должен был сложиться действительно благородный, с уважением к традициям. . . Мы меняли только часть квартиры - входную зону, кухню и ванную. Жилые комнаты были оформлены с большим вкусом и требовали только освежить краску на стенах. Даже мебель сохранилась историческая и прекрасно вписывалась в общую атмосферу. . . А вот зона, требующая проработки не отвечала требованиям ни по функции, ни по дизайну. . Поэтому мы все старое удалили и организовали пространство нужным нам образом. . . Цветовая гамма сложилась из мягких, природных оттенков мха травы, воды, земли, дерева... . А стилистика опиралась на традиции русской усадьбы, уютной классики, чего-то уютного и знакомого из детства наших мам и бабушек. . . В зоне прихожей разместили классическую вешалку, роскошное зеркало в полный рост, изящную консоль и красивую графику в старинной раме. . Двери на кухню сделали парадными, распашными и высокими - за счет фрамуги. Также это позволило добавить в прихожую дневного света. . . Сначала очень хотели вставить витраж в стекла, но впоследствии отказались от этой идеи - очень перегруженно это смотрелось в таком маленьком помещении. . . На кухне очень хотелось сделать зону для дружеских чаепитий с кружевной скатертью, абажуром над столом, старинным буфетом. . Туда же отлично вписался винный шкаф и большое зеркало в красивой раме. . . Очень долго думали над цветом буфета - были порывы сделать его белым или оливковым, много вариантов было пересмотрено, и пришли к самому теплому и уютному цвету натурального старого дерева. . . Самым роскошным помещением у нас получилась ванная. . Большая ванна, шикарная раковина, бронзовая фурнитура, изумительнейшей красоты плитка. . Постирочная зона убрана в нишу и не портит общего впечатления. . . Плитку изначально выбрали другую, но по срокам поставки она не устроила заказчиков, поэтому нашли плитку из наличия и нисколько не пожалели. . . Надеюсь, эта квартира действительно станет родовым гнездом для большой, чудесной, дружной семьи.
25 фотографий


























