Весеннее преображение
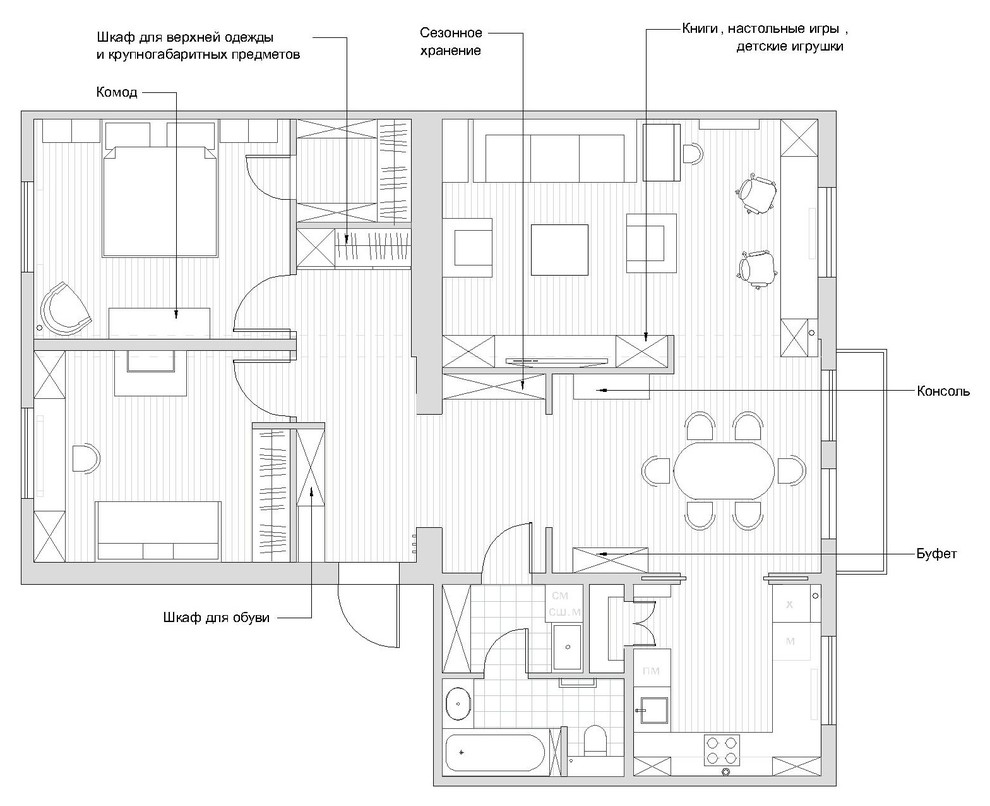
Проект 4-комнатной квартиры площадью почти 100 кв. метров. в доме 1959 года постройки, на 3 этаже с одним балконом, газовой колонкой в ванной, 3-метровыми потолками. . . У хозяйки мечта, сделать большую общую комнату - так как это сердце дома, где вся семья собирается вместе, занимается либо общим делом (игры, кино), либо каждый своим (чтение, рукоделие, компьютерные игры и др. и пр.), но все вместе, рядом. Спальни - для отдыха и занятий, требующих уединения и сосредоточения. . Вопрос хранения вещей был в проекте наипервейшей важности: если у чего-то в доме нет места - рассказывала хозяйка, - это что-то будет лежать там, где этому не следует лежать, и портить вид.Поэтому планировка сделана с учетом того, чтобы большие шкафы были органичной частью квартиры и расстворялись в пространстве. . . Вообще семья очень талантливая и дружная. Любят готовить, гулять по Москве - отмечают на карте маршруты - мы разместили ее в коридоре. Изготавливают предметы декора, увлекаются рукоделием. Вообще очень светлое и теплое ощущение от них и работать было очень легко и приятно.
33 фотографии


































