Новая высота
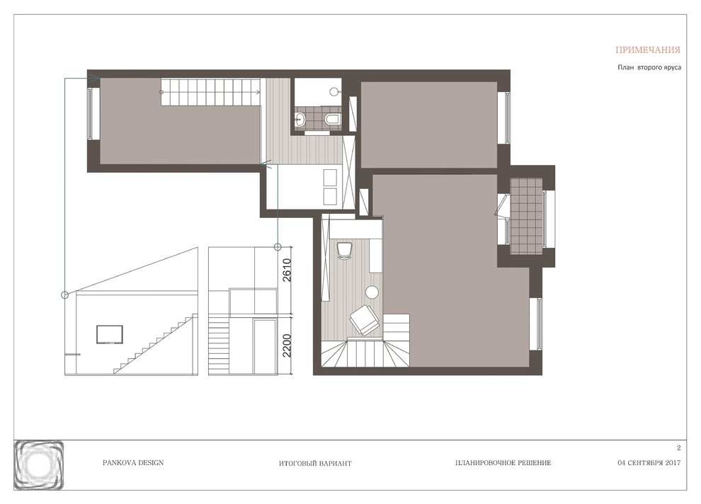
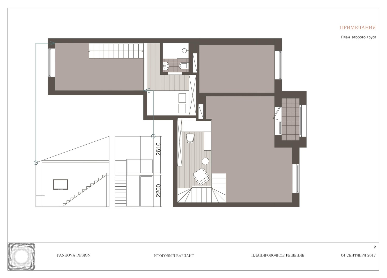
Трехкомнатная квартира площадью 72 м2 на мансардном этаже для умной, интеллегентной, душевной и прекрасной женщины и ее сына, старшекласника. Высота в верхней точке составила 5 метров, что позволило организовать антресоли для рабочего кабинета со стороны гостиной и спальни с душевой в комнате сына. Места не много, но гостям и друзьям в доме всегда рады. А в интерьер бережно вписаны дорогие хозяйке вещи - роспись батиком, вышитые картины, книги и памятные вещицы.
Год реализации: 2017
Стоимость проектирования: 135 000 ₽
г. Москва
33 фотографии


































