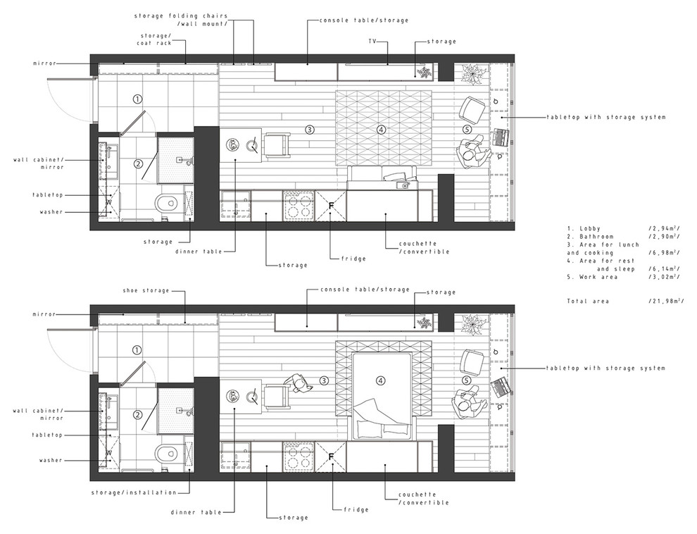
Small House 22 m2
location: Saint Petersburg, Russia . square meter: 22 m2 . year: 2016 . designer and visualizer: Barinov Andrey
Год реализации: 2016
г. Санкт-Петербург
19 фотографий
location: Saint Petersburg, Russia . square meter: 22 m2 . year: 2016 . designer and visualizer: Barinov Andrey
19 фотографий
