A Little Design | Tiny Apartment in Taichung City 22m2
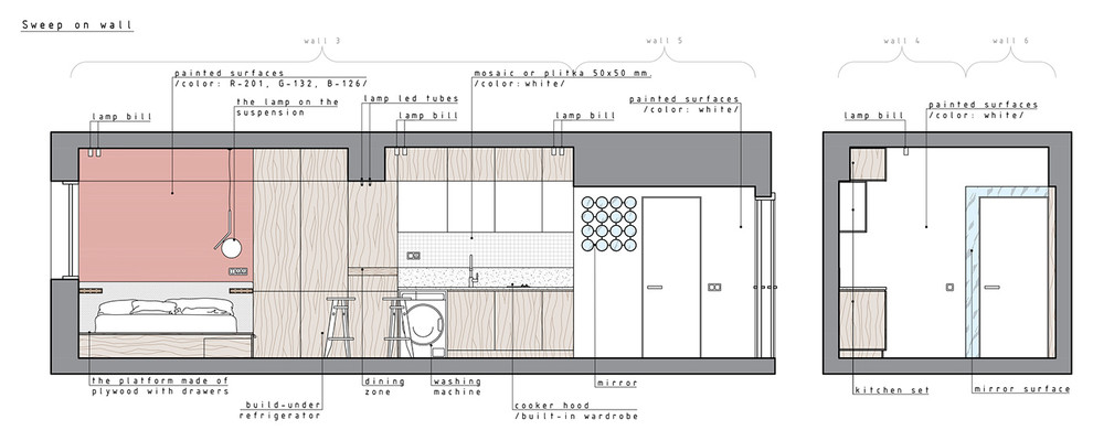
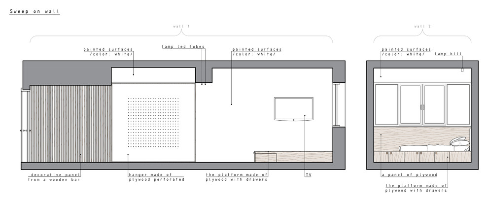
location:Taiwan,Taichung city ✕ square meter: 22.53 m2 ✕ year: 2017 . designer and visualizer: Barinov Andrey . bar.andrey58@yandex.ru
Год реализации: 2017
20 фотографий
location:Taiwan,Taichung city ✕ square meter: 22.53 m2 ✕ year: 2017 . designer and visualizer: Barinov Andrey . bar.andrey58@yandex.ru
20 фотографий
