Concrete
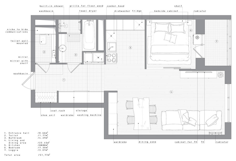
Concrete . location: Penza, Russia ✕ square meter: 51.77 m2 ✕ year: 2017 . designer and visualizer: Barinov Andrey . . bar.andrey58@yandex.ru
Год реализации: 2017
г. Пенза
22 фотографии
Concrete . location: Penza, Russia ✕ square meter: 51.77 m2 ✕ year: 2017 . designer and visualizer: Barinov Andrey . . bar.andrey58@yandex.ru
22 фотографии
