Сливочное настроение. Квартира для молодой семьи на ул. Кастанаевская
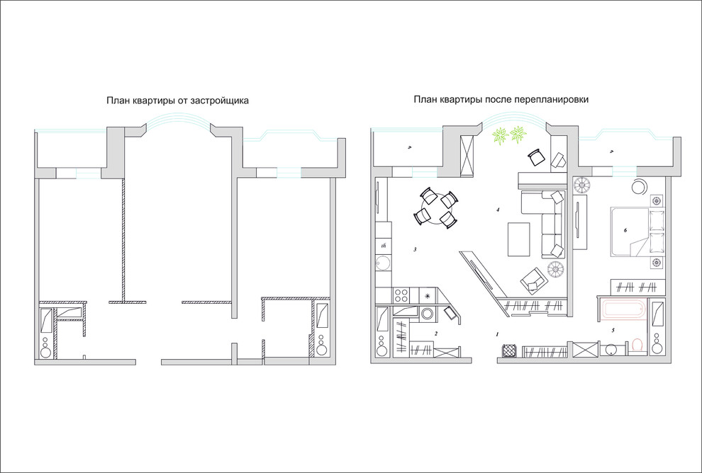
«Создание интерьера- очень интересный творческий процесс, требующий порой, поиска нестандартных решений. Каждый хочет получить свой, индивидуальный интерьер, соответствующий личному характеру, вкусу, укладу жизни. И моя задача - помочь заказчику получить именно такой результат»,- говорит автор проекта Елена Краснова. – . « Я люблю свою работу еще и за постоянную возможность знакомиться и общаться с очень интересными людьми. Со многими из моих заказчиков мы остаемся друзьями и после завершения проекта. В этот раз мне посчастливилось поработать с очень дружной семейной парой, полной позитива и жизненной энергии. Мои заказчики ведут активный образ жизни, успешно совмещая любовь к работе, спорту и путешествиям.» . Хотелось получить уютный и стильный интерьер, сочетающий в себе возможность отдохнуть после трудовых будней,отражающий индивидуальность хозяев квартиры. . Была поставлена задача объединить кухню и гостиную, но при этом иметь визуальное разделение этих зон. Также было необходимо предусмотреть полноценное рабочее место и достаточное количество мест для систем хранения. . Отсюда родилась идея диагональной перегородки, отделяющей зону гостиной от кухни и входной зоны, и придающей интерьеру индивидуальность. Рабочее место было решено разместить в зоне эркера гостиной. . В изначальном плане квартиры было две отдельных зоны санузлов - туалет и ванная. Было решено отказаться от одной из мокрых зон, увеличив ее за счет коридора и переоборудовав ее под гардеробную-кладовку, в которой помимо личных вещей и спортинвентаря, разместилась стиральная машина и небольшая раковина. .
28 фотографий




























