Интерьер по-мужски
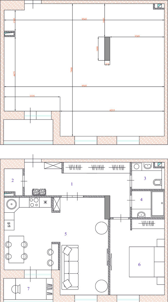
Аскетизм в дизайне квартиры был создан умышленно, поскольку ее хозяин, крайне разносторонний молодой человек, увлекающийся фотографией и обожающий путешествовать. Поэтому его пожеланием было оставить много места для его фото работ, а также будущих и настоящих сувениров из поездок. «Мне хочется наполнять свой дом постепенно, менять в нем настроение - говорит Стас, поэтому желательно сделать фоновый интерьер, который можно менять с помощью различных акцентов». . Для этого стены были выкрашены в белый цвет, но с различными световыми сценариями. Сейчас в квартире минимум мебели, только необходимое для жизни и учебы. .
Год реализации: 2016
22 фотографии






















