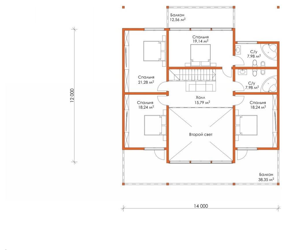
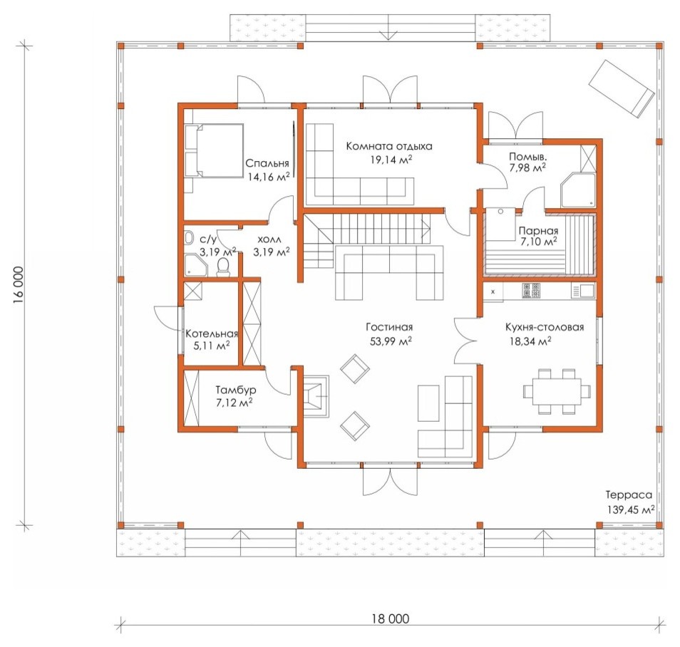
Площадь дома: 250 м² . Площадь террас: 191 м² . Кол-во этажей: 2 . Кол-во спален: 5 . Кол-во санузлов: 3 . . Модное заимствование из альпийской архитектуры занимает особую позицию в линейке проектов современных домов. Архитектурный образ с европейским характером отличается функциональностью и эргономичностью планировочного решения с расчетом на потребности русских широт. . Пронизанное светом пространство ограничено массивной двускатной кровлей, создающей неповторимый образ, ярко выделяющийся на фоне стандартных проектов. «Шале», окутывающий уютом и теплом камина внутри, с вызывающей респектабельностью фасадов снаружи – беспроигрышное вложение в достойное будущее. . . Архитектор - Михаил Юханов . .
5 фотографий






