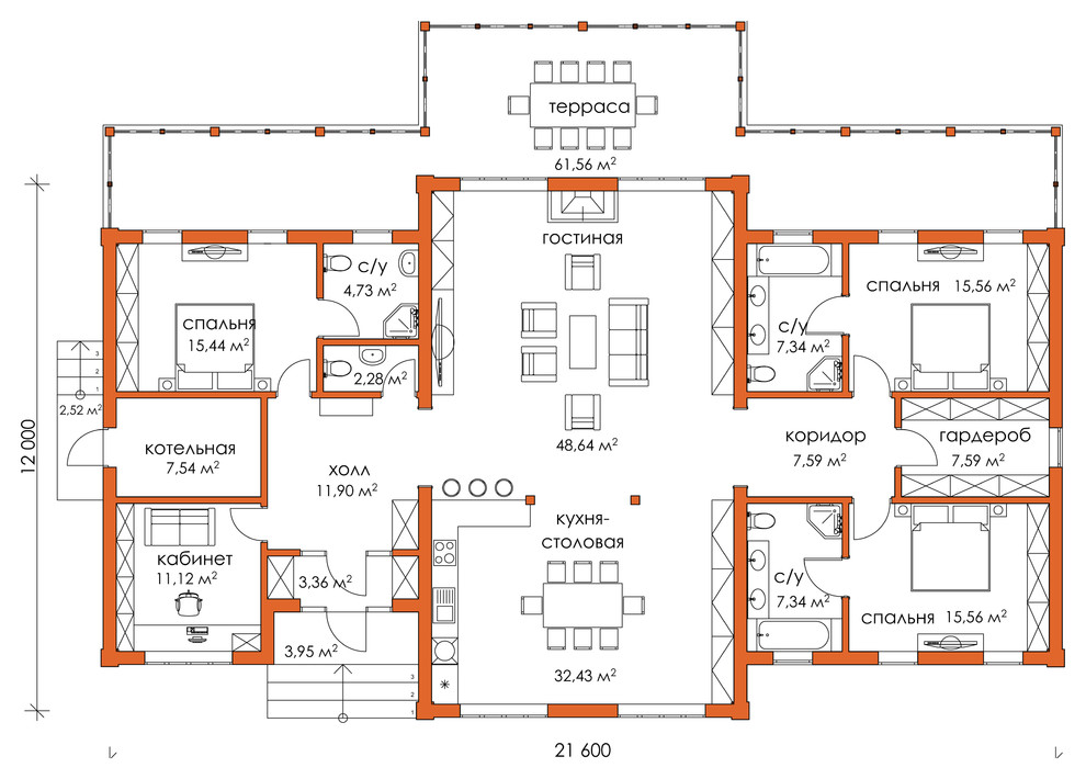
Площадь дома: 197м² . Площадь террас: 74 м² . Кол-во этажей: 1 . Кол-во спален: 3 . Кол-во санузлов: 4 . . Загородный деревянный дом с акцентом на переднем фасаде. Это терраса, через которую осуществляется вход в дом, лаконичный по архитектурному и простой по планировочному решению. Данный деревянный дом очень уютный и комфортный, подходит как для проживания семьи из 3-х и более человек и размещения гостей, так и в качестве основной постройки. . . Архитектор - Виталий Харитошин
Год реализации: 2017
Стоимость проектирования: 2 450 000 ₽
6 фотографий







