Гордость
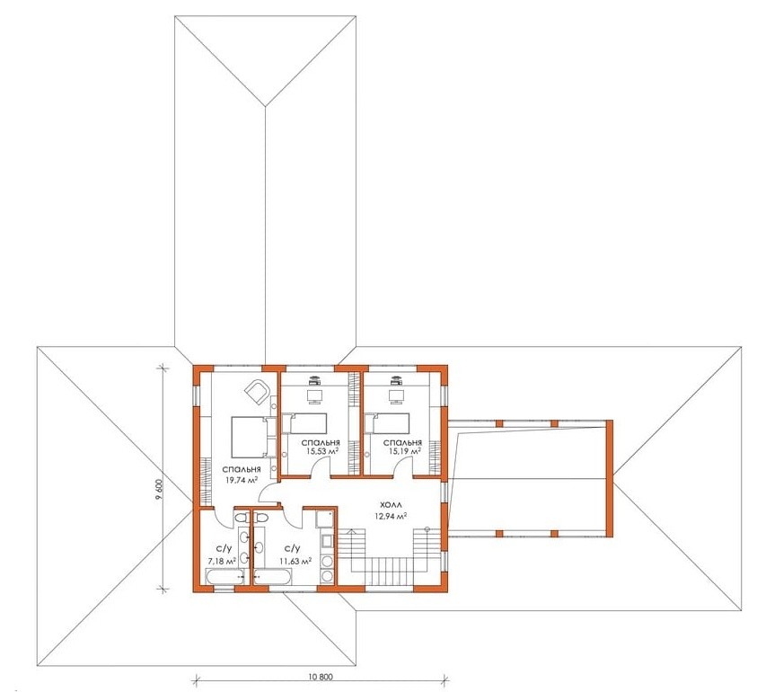
Площадь дома: 388 м² . Площадь террас: 145 м² . Кол-во этажей: 2 . Кол-во спален: 4 . Кол-во санузлов: 4 . Наличие гаража: ✔ . . Основная идея проекта заключается в создании экологичного, современного и функционального загородного дома, в котором есть все необходимое для комфортного проживания и отдыха семьи от 3-х и более человек, размещения гостей. . Двухэтажный загородный дом с гаражом, лаконичен по архитектурному и простой по планировочному решению. . . Архитектор - Виталий Харитошин
Год реализации: 2017
Стоимость проектирования: 5 250 000 ₽
6 фотографий







