
Проектирование и строительство
5
·
2 отзыва
Гордость
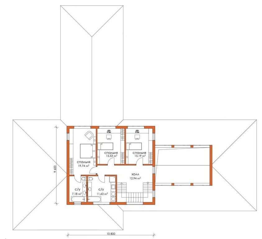
Площадь дома: 388 м² . Площадь террас: 145 м² . Кол-во этажей: 2 . Кол-во спален: 4 . Кол-во санузлов: 4 . Наличие гаража: ✔ . . Основная идея проекта заключается в создании экологичного, современного и функционального загородного дома, в котором есть все необходимое для комфортного проживания и отдыха семьи от 3-х и более человек, размещения гостей. . Двухэтажный загородный дом с гаражом, лаконичен по архитектурному и простой по планировочному решению. . . Архитектор - Виталий Харитошин
Другие фотографии в проекте
2 раза сохранено в статьи и альбомы идей:
Добавил(-а) в альбом: Идеи bur2507
Вопросы к фото 0
Задайте вопрос
Вам ответят эксперты. Пришлем уведомление, когда вам ответят




