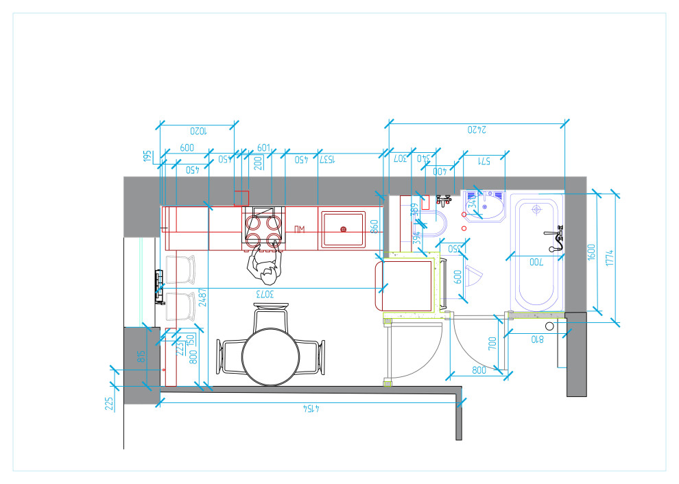
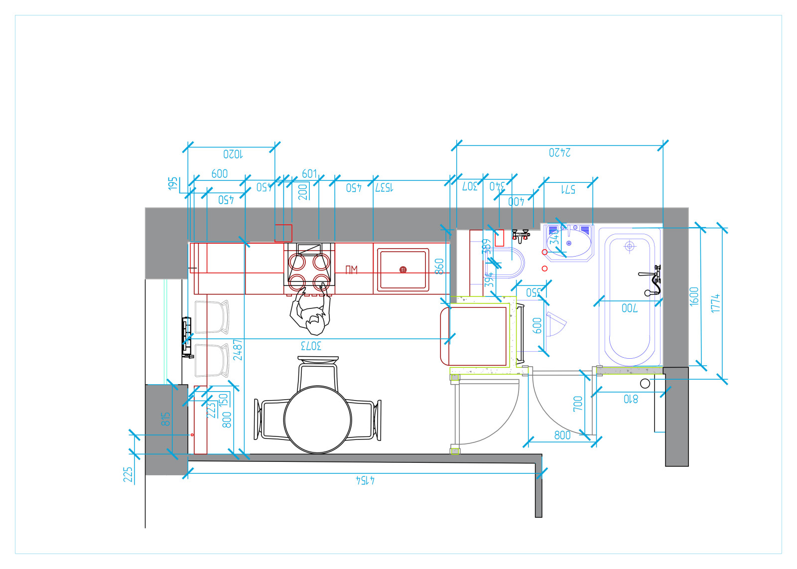
Санузел и кухня в Сталинке
Хозяева квартиры в кирпичной сталинке захотели объединить туалет и ванну (3,87 кв.м.), при этом заняв часть площади санузла под нишу для холодильника. Им нужно было оставить ванну, найти место для стиральной машины и сделать кухню (7, 64 кв.м.функциональной и удобной. Из 6 вариантов планировок был выбран самый оптимальный, где удалось совместить все пожелания хозяев с возможностями небольшого пространства.
Год реализации: 2023
г. Москва, 4 3-й Автозаводский проезд, Южный административный округ
14 фотографий















