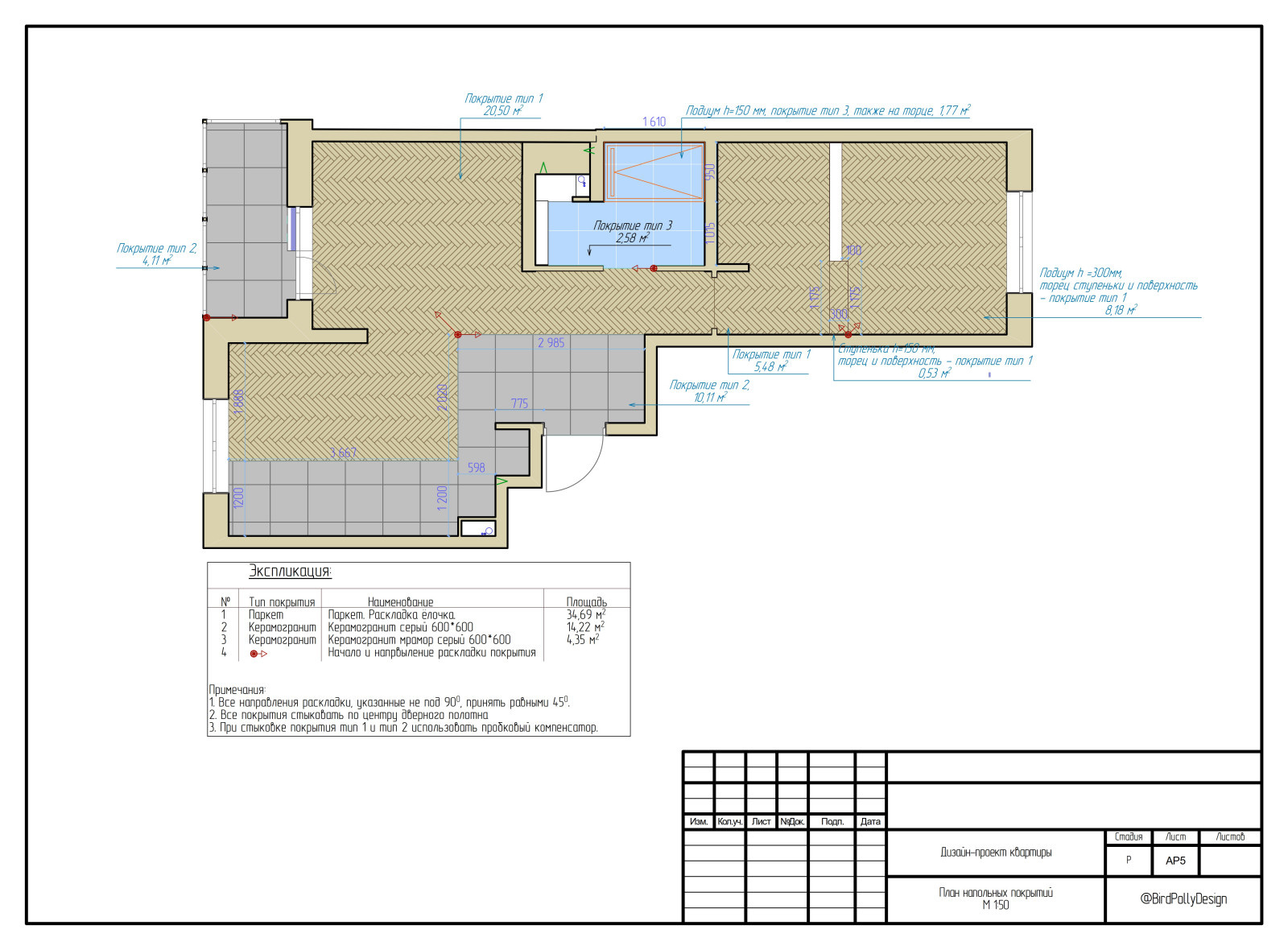
Рабочие чертежи, 53,02 кв.м.
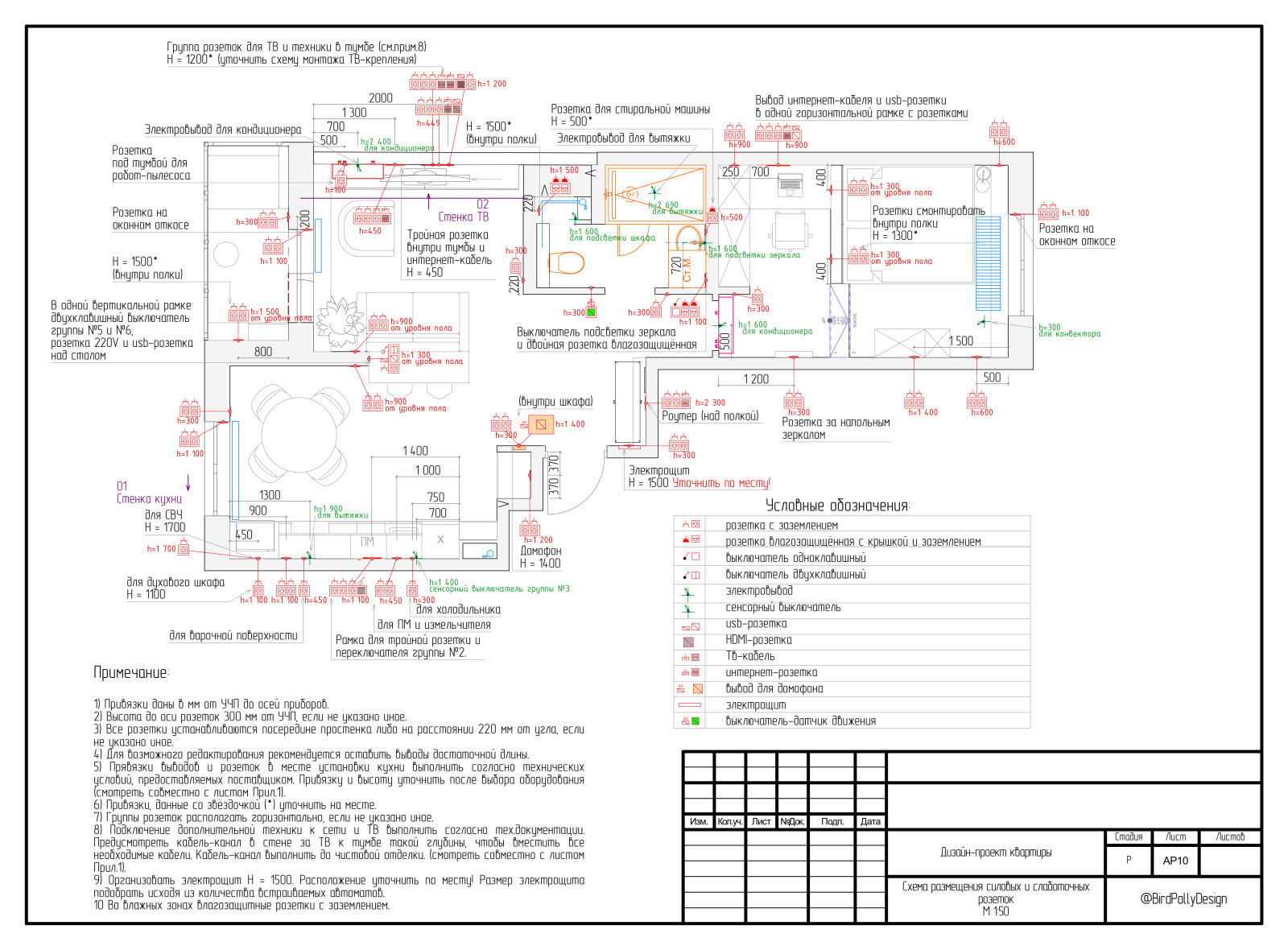
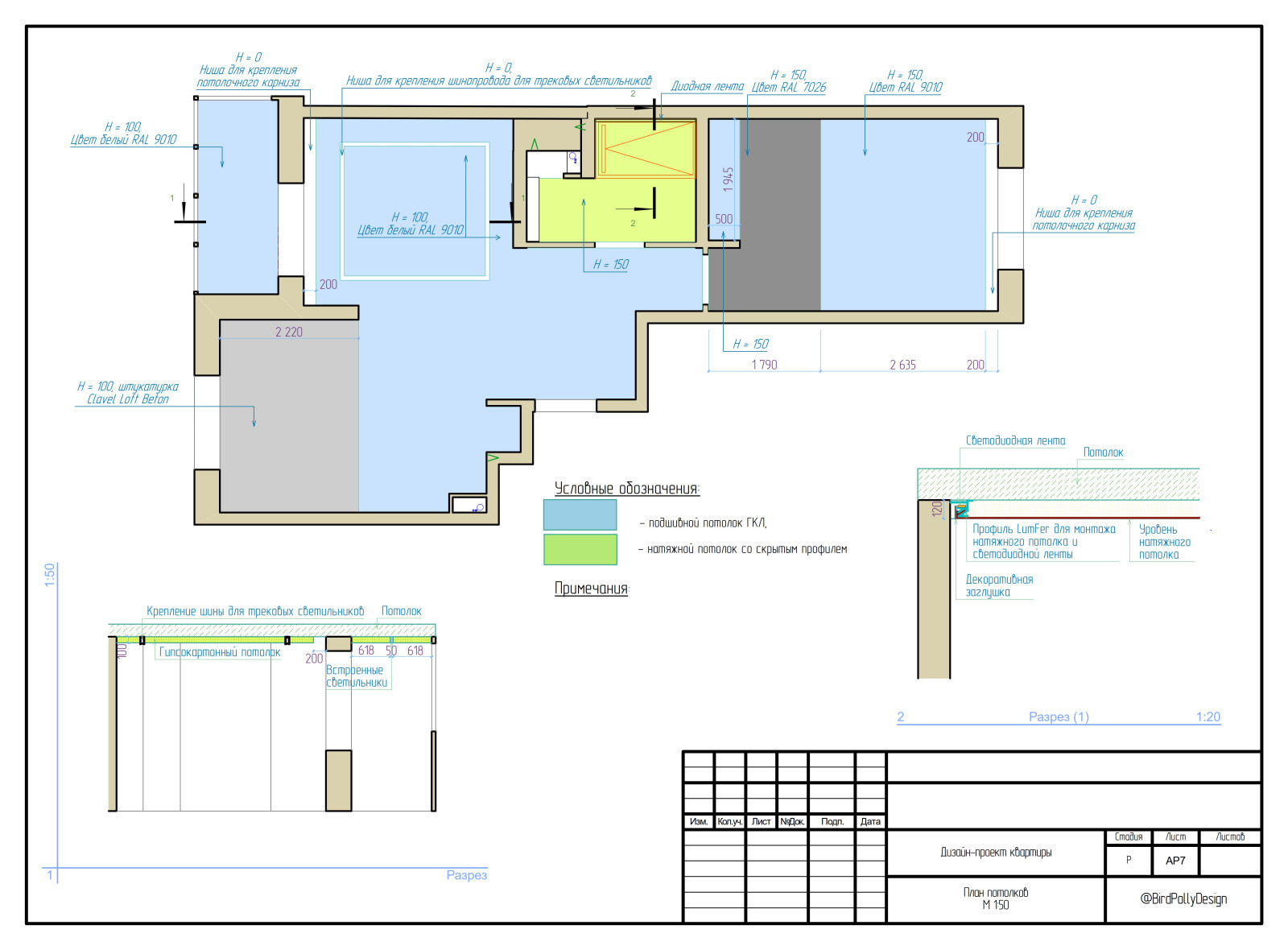
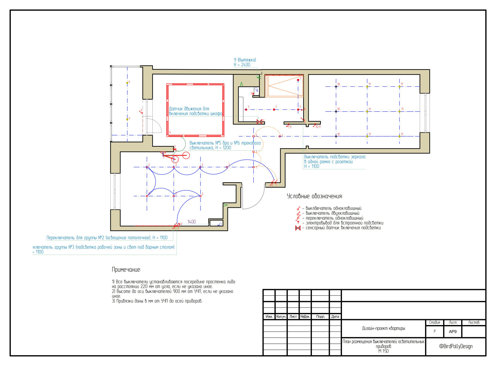
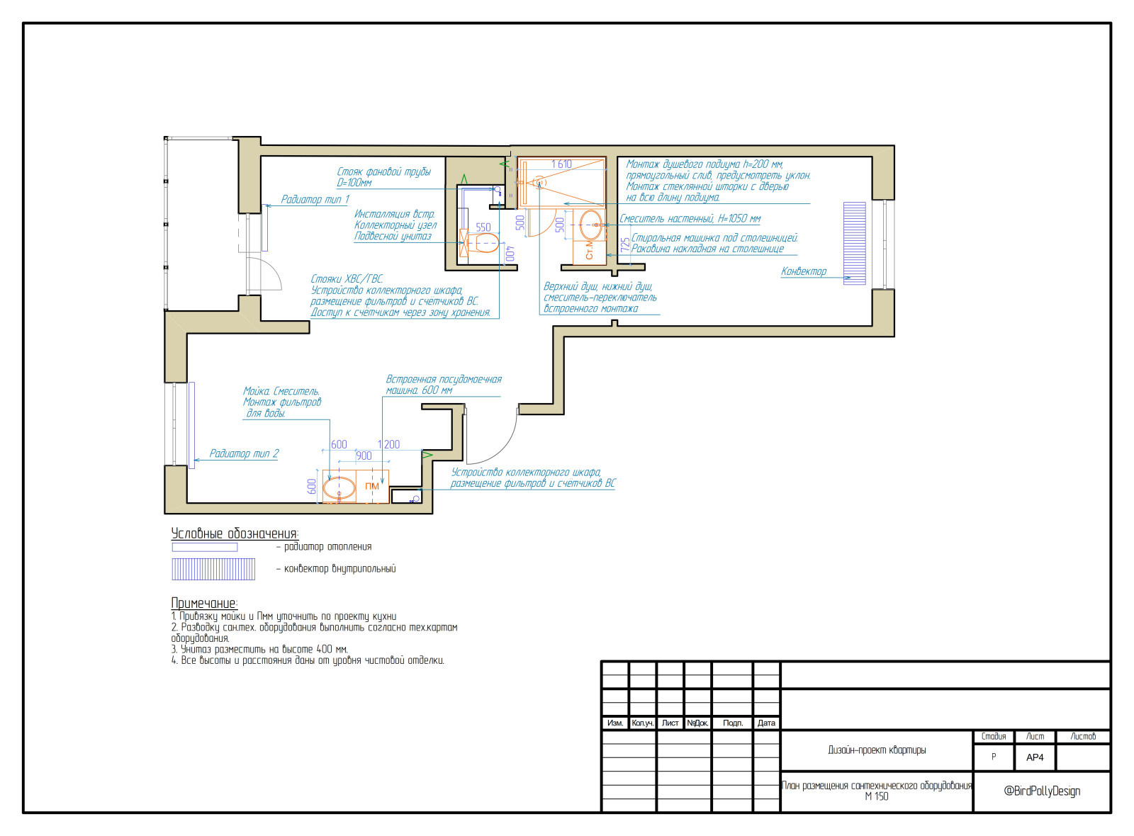
Часть дизайн-проекта квартиры 53,02 кв.м. Представлены некоторые из рабочих чертежей в демонстрационных целях. .
Год реализации: 2021
г. Санкт-Петербург
22 фотографии
Часть дизайн-проекта квартиры 53,02 кв.м. Представлены некоторые из рабочих чертежей в демонстрационных целях. .
22 фотографии
