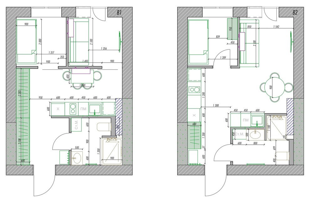
Профиль пользователяРазработка планировочных решений для 30 кв. м.Год реализации: 2019г. Сочи4 фотографииПоделитьсяСохранитьИтоговый вариант на основе 3-го варианта.ПоделитьсяСохранитьПланировки 3 и 4.ПоделитьсяСохранитьВарианты планировок 1 и 2ПоделитьсяСохранитьКвартира в Сочи для отдыха семьи их 4х человек. Обмерочный план.ПоделитьсяСохранить