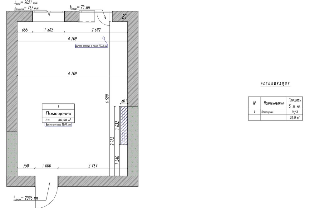
Квартира в Сочи для отдыха семьи их 4х человек. Обмерочный план.

Другие фотографии в проекте Разработка планировочных решений для 30 кв. м.

Итоговый вариант на основе 3-го варианта.
Планировки 3 и 4.
Варианты планировок 1 и 2

Вопросы к фото 0

Задайте вопрос

Вам ответят эксперты. Пришлем уведомление, когда вам ответят

30 квадратных метров, Контемпорари, Омск, Сочи, планировка, планировки