
Дизайнеры интерьера
0
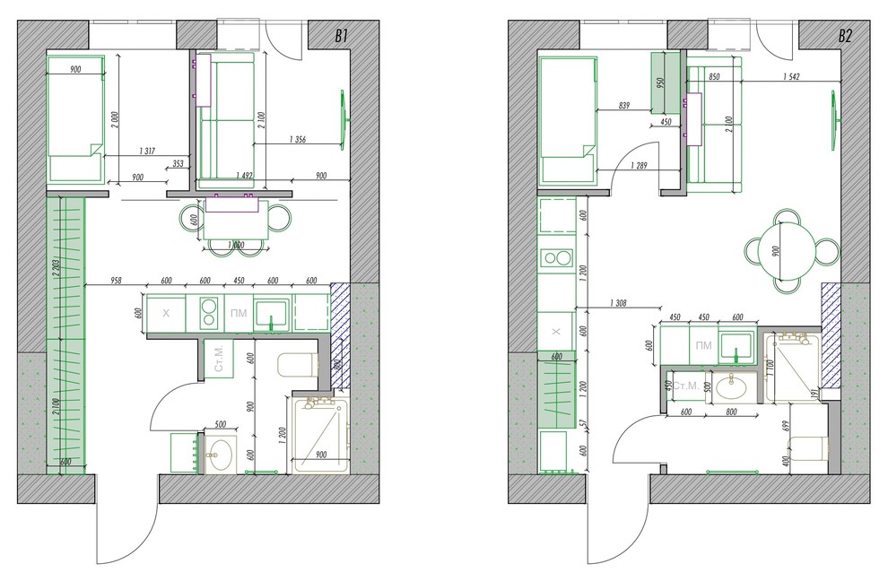
Разработка планировочных решений для 30 кв. м.
Необходимо было выделить зоны для отдыха для каждого члена семьи. . 1 ВАРИАНТ . Плюсом планировки являются раздельные спальни детская с двухъярусной кроватью, спальня-гостиная с раскладным диваном для родителей. Кухня расположена в проходной зоне, холодильник и духовой шкаф с свч расположен в пенале справа. Большая зона хранения, пуф в прихожей справа от входа. . 2 ВАРИАНТ . Детская отделена дверью,в ней расположен комод и детская двухъярусная кровать . . Кухонный фронт разделен за счет этого больше рабочего пространства. Зоны столовой и гостиной объединены одним пространством. В ванной стиральная машина расположена под столешницей раковины.
Другие фотографии в проекте
Вопросы к фото 0
Задайте вопрос
Вам ответят эксперты. Пришлем уведомление, когда вам ответят


