Провокатор
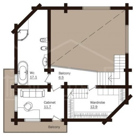
Дом состоит из трех этажей, на которых удобно размещены все те помещения, которые сделают жизнь за городом максимально комфортной. Фасад здания выглядит весьма необычно, но это далеко не все преимущества данного проекта. Внутреннее обустройство продумано до мелочей, и этот дом идеально подойдет как семейной паре, любящей шумные вечеринки, так и семье с детьми. . . Первый этаж состоит из: . . просторной кухни; . . столовой; . . большой гостиной со вторым светом; . . санузла. . . Также здесь располагается котельная с отдельным входом и окном, что соответствует требованиям безопасности. . . На втором этаже проектом предусмотрено наличие гардеробной, кабинета, большой ванной комнаты и балкона. Третий этаж вместил в себя еще один балкон, спальню и просторный холл. . . Такой дом подходит для круглогодичной жизни. Используемая в работе древесина отличается долговечностью, отменными теплоизоляционными свойствами и эксплуатационными качествами. . . . Площадь - 214 м² . Жилая площадь - 128 м² . Площадь кухни - 11.7 м² . Количество этажей - 3 . Количество спален - 2
6 фотографий






