Логово холостяка
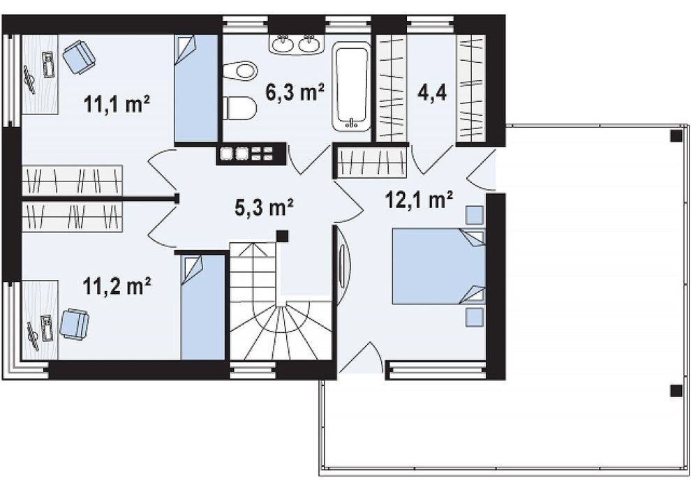
Проект «Логово холостяка» – представляет современный элегантный дом с гостиной, расположенной с фронтальной стороны. Роскошный интерьер здания невероятно привлекателен благодаря удачным архитектурным находкам, которые сливаются в общий гармоничный ансамбль. Террасы первого и второго уровня, вынесенные к фронтальной плоскости, связывают все детали в единое целое. . . Дневная зона решена как большое светлое пространство с гостиной, местом для столовой и кухней (здесь предусмотрена вместительная кладовая). Устроенный у внутренней стены камин наполняет помещение теплом и уютом. Также на первом этаже спроектирована ванная и отдельная спальня. Три спальни с общей ванной образуют ночную зону второго этажа (полная высота этого уровня - 2,65м). На террасе можно устроить летнюю зону отдыха (выходы спроектированы из большей спальни). В базовой версии гараж рассчитан на одну машину, но его площадь можно увеличить. .
19 фотографий



















