Проект загородного дома "FaHouse"
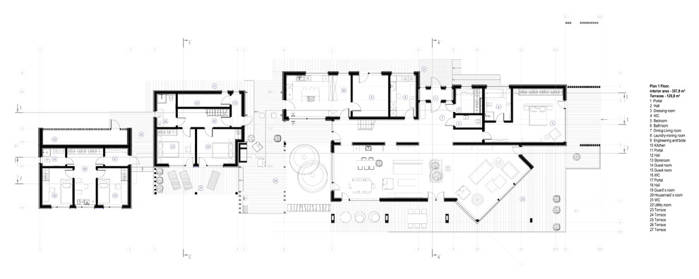
Загородный дом на берегу Финского залива — это пример частной жилой архитектуры, в которой с особенным трепетом соблюдены все пожелания заказчика, учтены и освоены окружающий природный ландшафт и дизайн-код территории. . Дачная культура, хорошо развитая в советское время в областях крупных городов, предполагает, в основном, что семейный летний дом будет возведен силами членов этой семьи. Возможно, именно поэтому в большинстве пригородных Петербурга районов нет цельного облика застройки, даже архитектуры как таковой — все участки ограничены высоким не просматриваемым забором или зелеными насаждениями, а постройки являются очень разным и часто невероятным воплощением мечты каждой семьи о загородном доме. . В это же самое время, на побережье Финского залива традиция развивается параллельным путем. Излюбленное место для дачного отдыха ленинградской творческой интеллигенции XX века и сегодня остается территорией с особенным дизайн-кодом жилой архитектуры. Загородные дома часто оказываются авторскими находками, эстетическими оазисами в заповедном лесу. Поэтому задача возведения частного жилого строения на этой территории оказалась более сложной и многослойной, чем видно с первого взгляда. . Общая площадь дома 805 м2, он состоит из трех объемов: основного дома, гостевого дома и дома для персонала. Между собой строения связаны крытыми и открытыми террасами. Участок необычной формы с перепадами рельефа задает конфигурацию дома. Комплекс из трех строений располагается вдоль северной стороны участка, оставляя максимально нетронутой естественную рекреационную зону — поляну с соснами. Такого расположение открывает сквозные виды и организовывает комфортную жизнь загородной резиденции. В проекте учтен предполагаемый загородный быт: траектории перемещения жильцов, оптимальные и комфортные ежедневные сценарии эксплуатации здания. Ориентация и конфигурация дома вписаны в ландшафт так, что сохраняется фактически полная приватность жизни хозяев и персонала без установки высоких ограждений, нарушающих внешний облик уникальной природной зоны. . Панорамные окна позволяют созерцать окружающий ландшафт из любой точки загородного комплекса. В доме предусмотрены крытые и открытые террасы. В то время, как экстерьер и интерьер, мебель и малые архитектурные формы выполнены из натуральных, простых и функциональных материалов. .
36 фотографий





































