Гостевой дом в пригороде Санкт - Петербурга
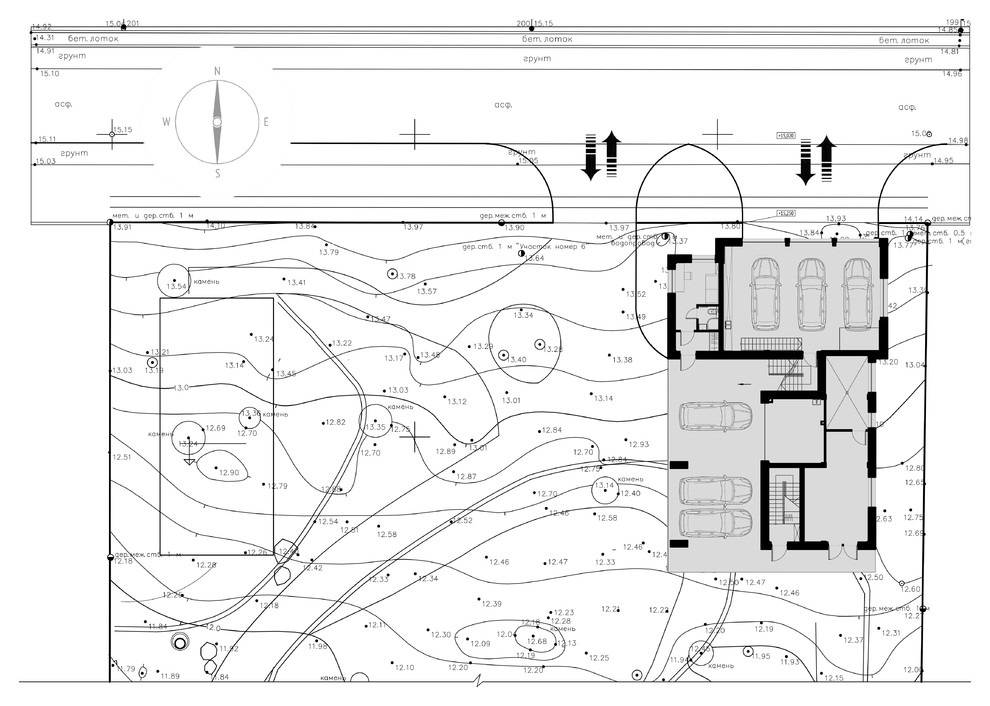
Дом предназначен для обслуживания загородного участка на берегу финского залива. В здании предусмотрены различные технические и хозяйственные функции: гараж для трех автомобилей, стоянка для трех автомобилей, гараж для квадроцикла, технические помещения для хранения инвентаря и уличной мебели, котельная, генераторная, помещение для охранника, помещения для персонала 4-6 человек, а также веранда для хозяев и гостей. . Участок находится на берегу финского залива в сосновом лесу. Рельеф, на котором располагается строение, имеет уклон, поэтому въезды находятся на разных отметках. . Мы постарались продумать сценарий жизни на участке и предусмотреть траектории передвижений жильцов. Дом разделен на 2 части - первая для персонала, вторая для владельцев дома, поэтому в проекте две лестницы. . В проекте использованы современные и натуральные материалы. Отделка второго этажа выполнена в металле светло-серого оттенка для создания визуальной легкости, это подчеркивает близость к морю. Первый этаж облицован доской из лиственницы разных оттенков и ширины в сочетании с интегрированной вертикальной подсветкой. . Мы постарались создать уникальную среду для жизни. Пожелания клиента вдохновили нас, чтобы придумать новые решения. .
12 фотографий













