Проект Строкино-1
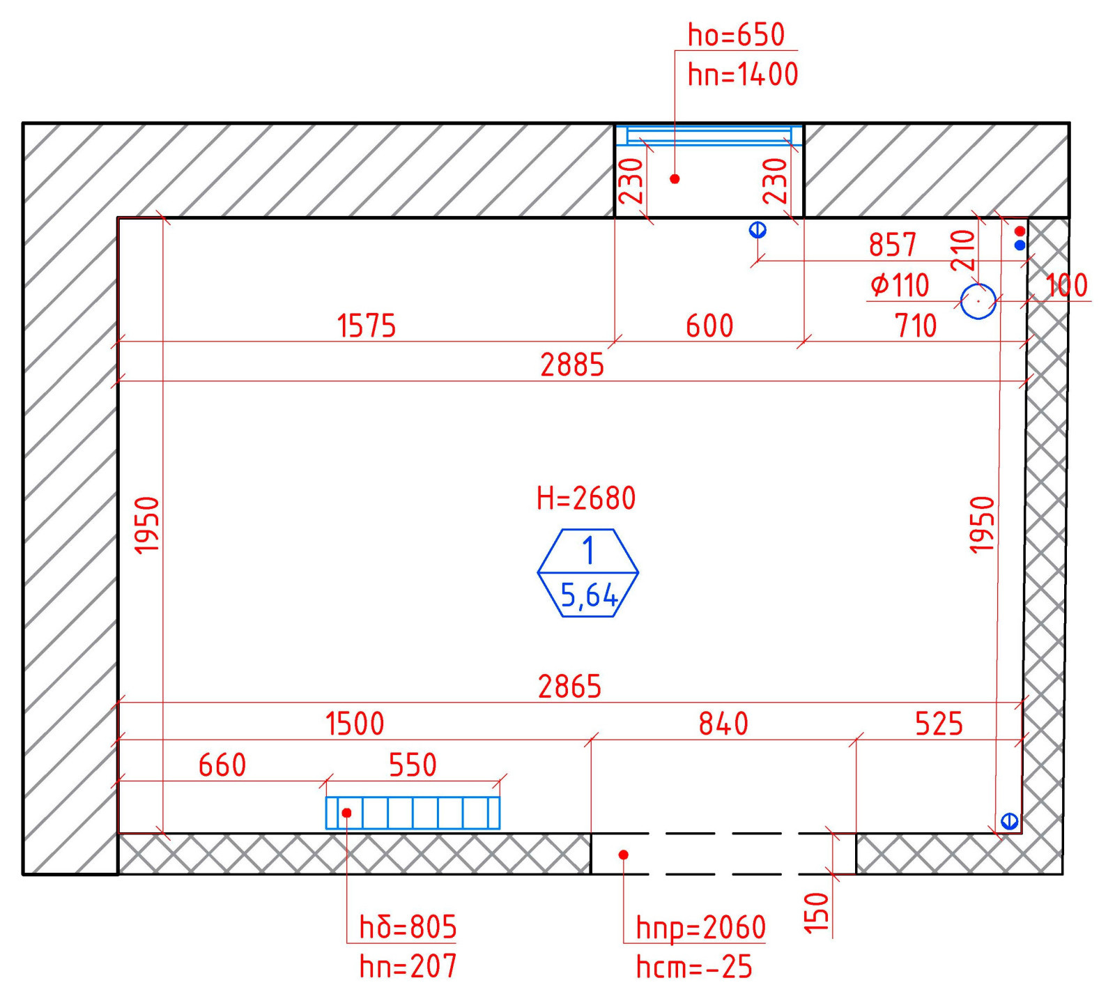
Проект санузла - ванной комнаты на первом этаже загородного дома. . . Видео проекта https://yadi.sk/i/buD6yMdiAfd4LA . Панорама 360 https://kuula.co/share/7dvrD . . Основное пожелание было большая душевая кабина и сидение в ней. Вдохновение при выборе цветов и стиля почерпнули в керамической плитке, похожей и песок. Затем идея развилась до морского побережья с песком, камнями и сухими ветками.
Год реализации: 2020
Стоимость проектирования: 135 000 ₽
9 фотографий








