Проект Монохром
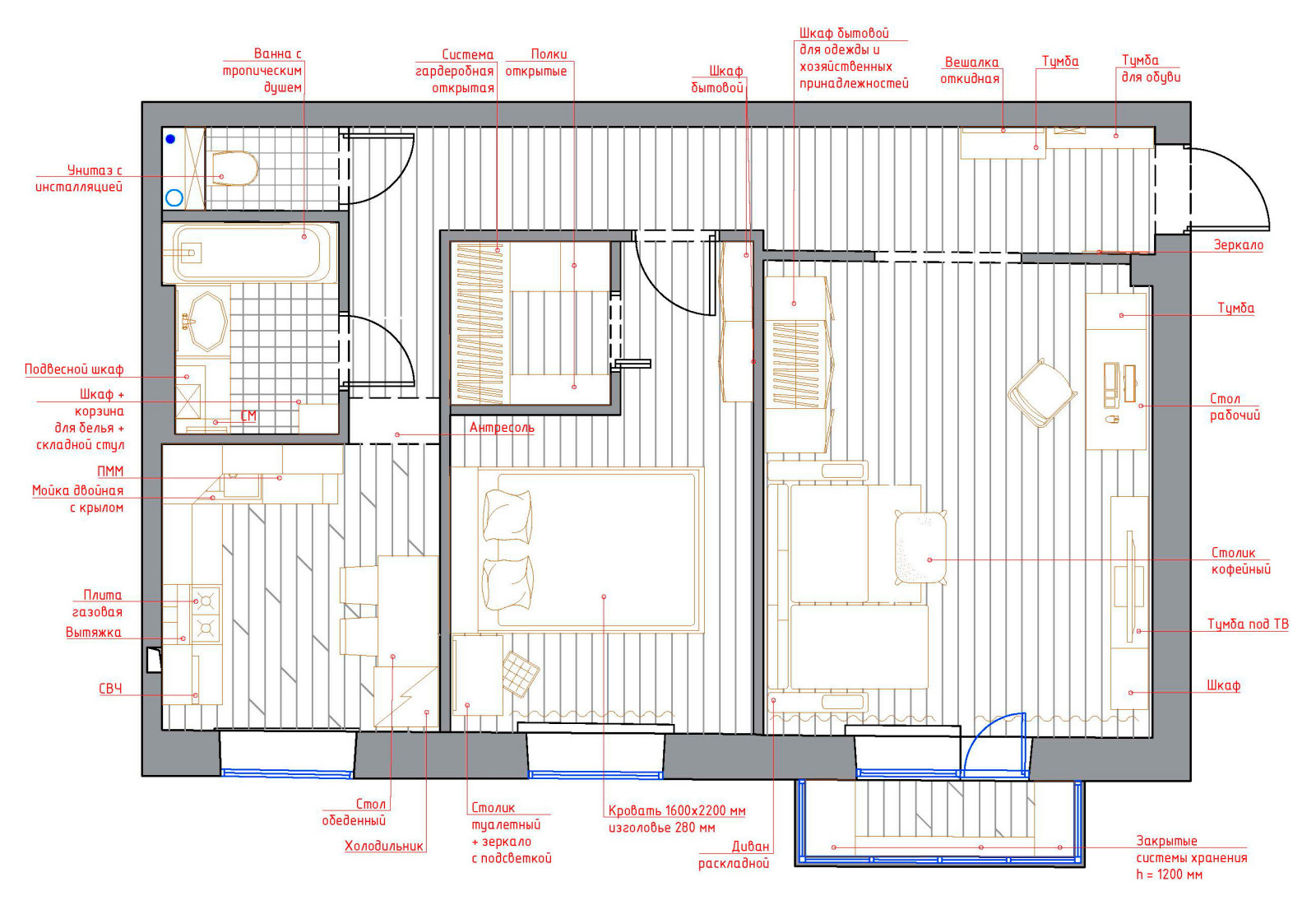
Проект двухкомнатной квартиры для семьи из двух человек. . . Видео проекта https://yadi.sk/i/L7Ik-HhORLSPWA . . Клиенты хотели монохромную холодную обстановку без передвижения существующих стен. Стилевое предпочтение отдавалось минимализму и угловатым формам. В качестве декора стен использовали, имеющиеся у клиентов картины.
Год реализации: 2019
Стоимость проектирования: 1 050 000 ₽
г. Дубна, 9 Октябрьская улица
24 фотографии
























