Проект Северные холода
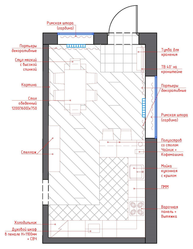
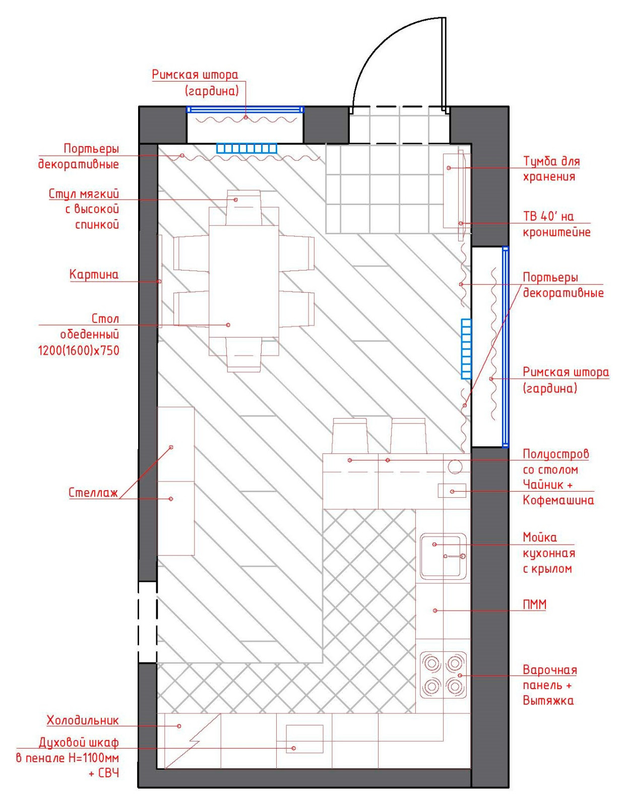
Дизайн-проект кухни-столовой в загородном доме. . . Видео проекта https://yadi.sk/i/m88OymodmJcgHA . Панорама 360 https://kuula.co/share/7dLPM . . Первоначально клиент хотел теплую цветовую гамму, но после обсуждения аналогов мы пришли всё-таки к холодной. Обязательными требованиями были большой кухонный гарнитур, обеденный стол минимум на 5 человек, грязной зоны (так как отсюда можно выйти в сад, но только в летнее время) и телевизор, который удобно смотреть из любой зоны помещения.
Год реализации: 2020
Стоимость проектирования: 525 000 ₽
г. Дубна, улица Спортивная
10 фотографий











