Проект мансардного дома из газобетона, 138 кв.м.
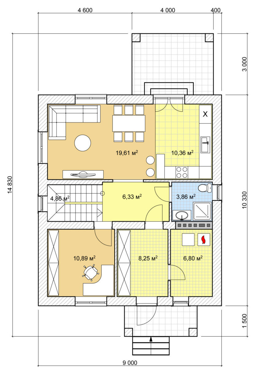
Проект дома простой формы размером 9x11.8 кв.м., с мансардной двускатной кровлей, По данному проекту дом можно построить из кирпича или блоков, к примеру из газобетона или керамзитобетона. . . Фундамент в данном случае расчетный при предоставлении геологических изысканий участка.
Год реализации: 2021
Стоимость проектирования: 135 000 ₽
4 фотографии




