Проект двухэтажного дома с гаражом, балконом и террасой
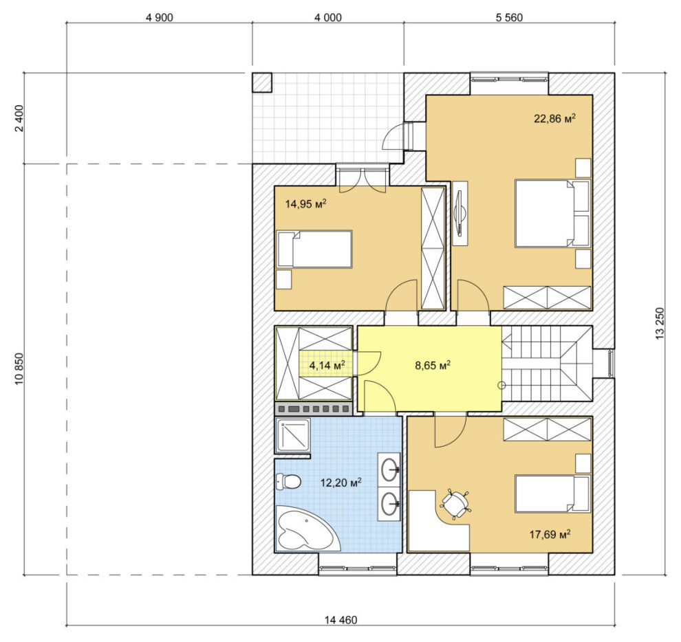
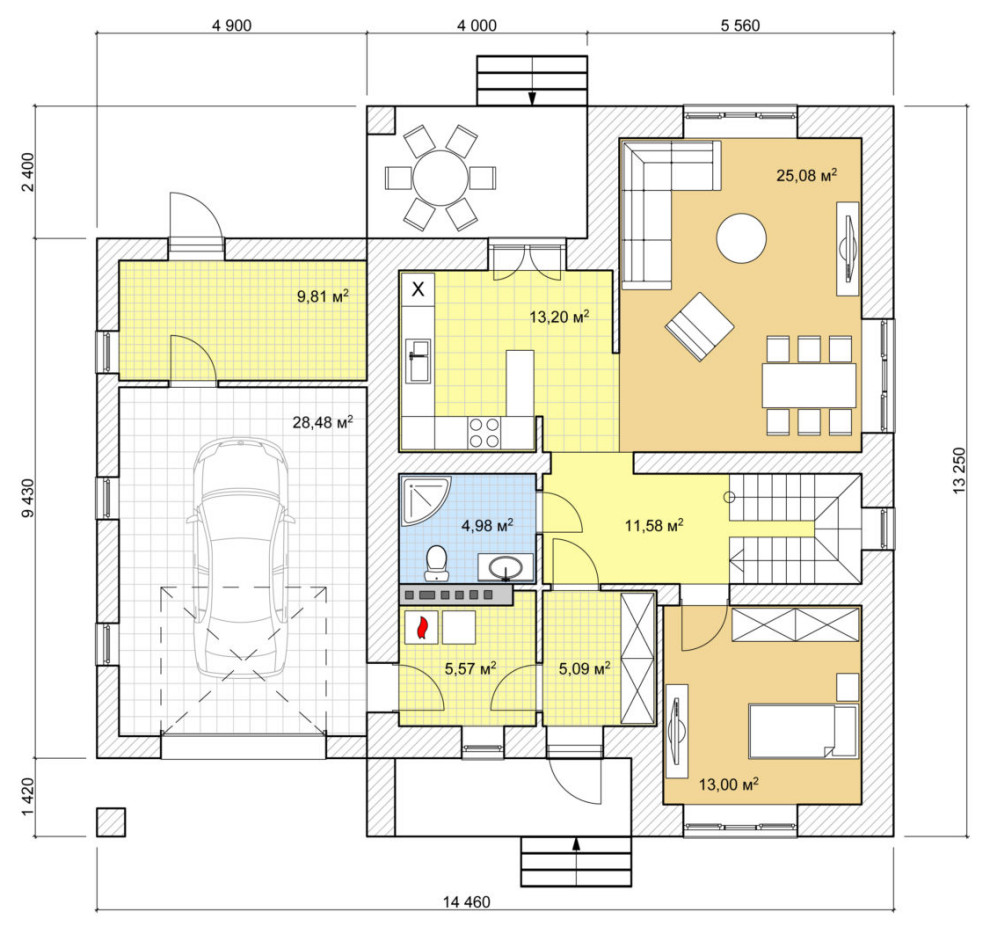
Современный двухэтажный дом с 4-мя спальнями и гостиной. Фасад отделан комбинированными материалами керамическим кирпичом и декоративной штукатуркой. . Общая площадь: 197 кв.м. . Габариты: 14.5x13.3 м. . . По данному проекту дом можно построить из кирпича или блоков, к примеру из газобетона или керамзитобетона. Фундамент в данном случае расчетный при предоставлении геологических изысканий участка.
Стоимость проектирования: 135 000 ₽
4 фотографии




