Проект двухэтажного дома с террасой, балконом, крыльцом и тамбуром
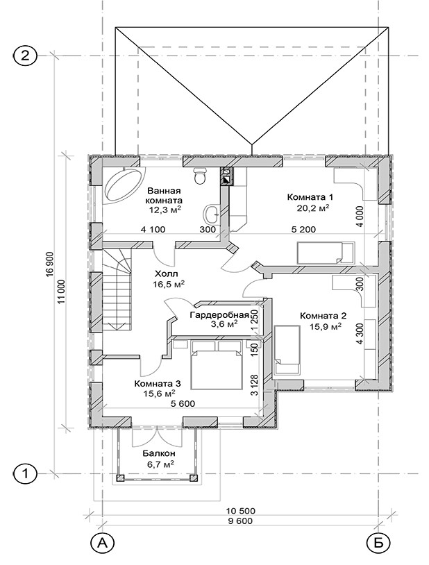
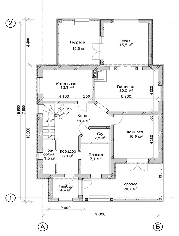
Привлекательный проект двухэтажного дома с современным фасадом и уютной планировкой на 4 просторные спальные комнаты и другими полезными помещениями. . Площадь: 201 кв.м. . Габариты: 10.5x16.9 м. . . . По данному проекту дом можно построить из кирпича или блоков, к примеру из газобетона или керамзитобетона. Фундамент в данном случае расчетный при предоставлении геологических изысканий участка.
Год реализации: 2021
Стоимость проектирования: 135 000 ₽
6 фотографий






