Проект квартиры в Г. Санкт-Петербург
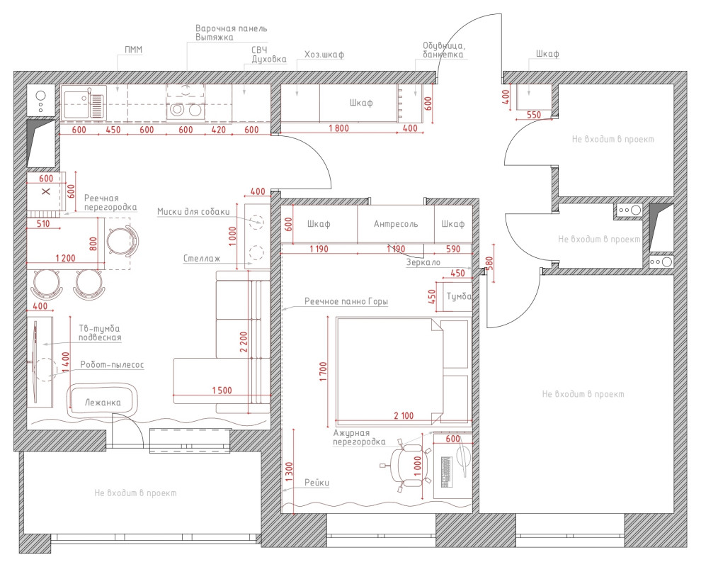
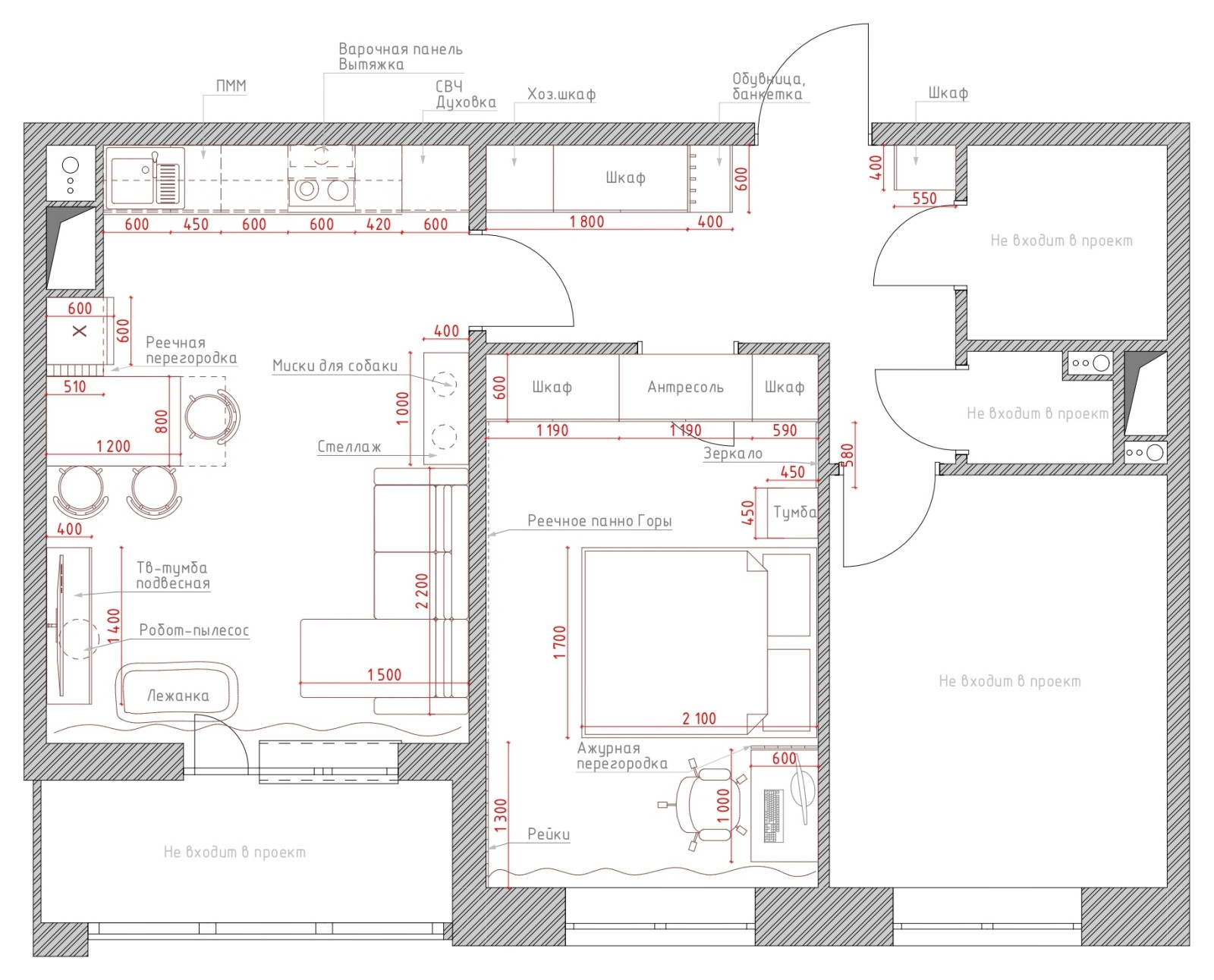
Дизайн-проект части квартиры (кухни- . гостиной, спальни и прихожей) для заказчиков из нашей . культурной столицы, г. Санкт-Петербурга. Квартира 58 кв.м. с чистовым ремонтом от застройщика Setl City. . Необходимо было предложитьнесколько вариантов . расстановки мебели, зонирование, подобрать цветовую палитру, . расположение секций в кухонном гарнитуре, кухонной . техники, место для робота-пылесоса, двух собачьих мисок, достаточно мест для хранения.
Год реализации: 2022
Стоимость проектирования: 34 999 ₽
12 фотографий













