Проект Квартиры 90кв.м в Екатеринбурге
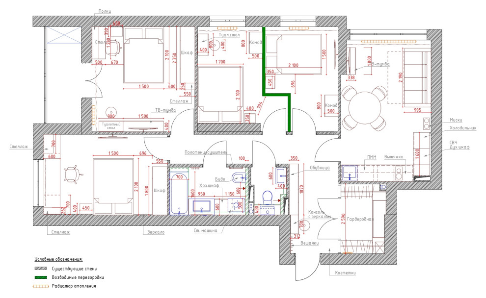
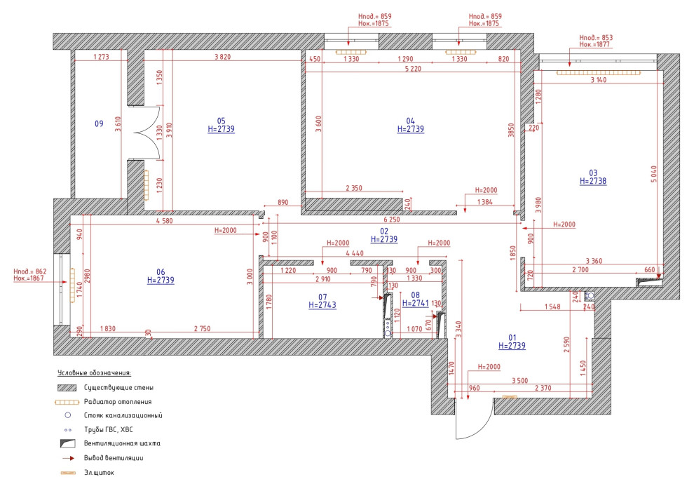
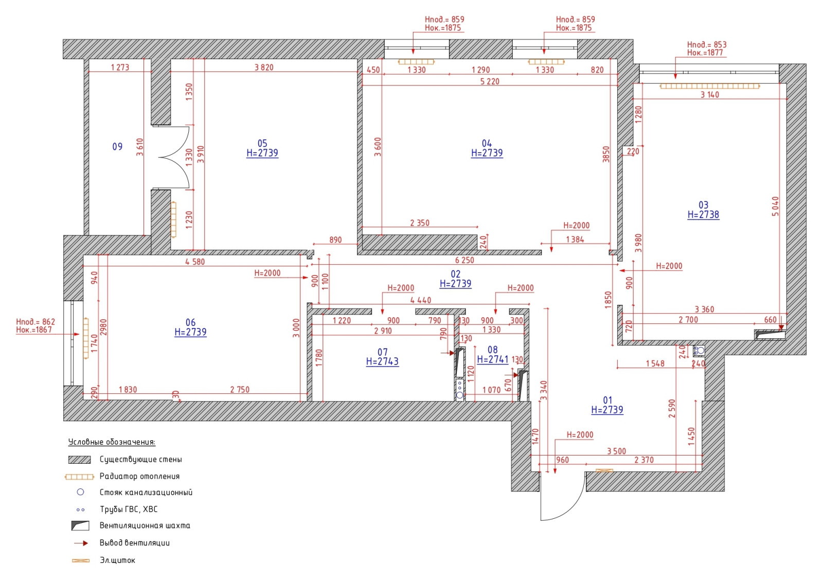
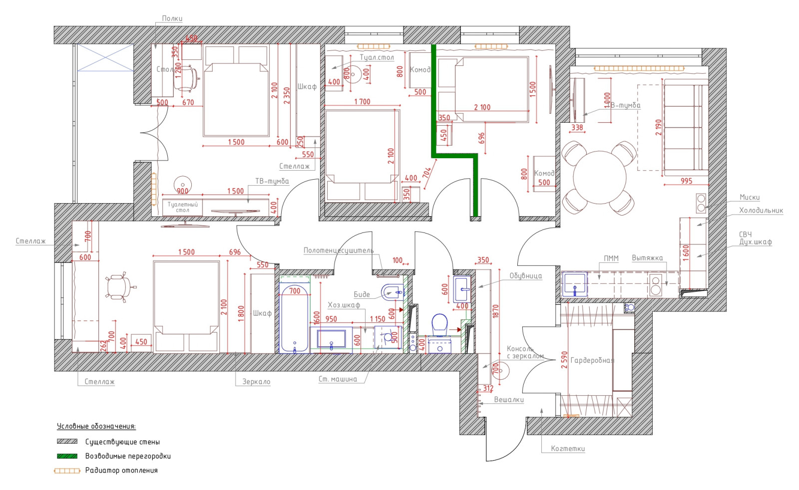
Полный проект квартиры 90 кв.м. для семьи с двумя дочерьми 10 и 15 лет, в г.Екатеринбург. Необходимо было разделить большую комнату на 2, переделав трехкомнатную квартиру в четырехкомнатную (раздельные спальни родителей), выполнить расстановку мебели под нужды семьи, выполнить эскизы и чертежи для строителей.
Год реализации: 2023
Стоимость проектирования: 135 000 ₽
г. Екатеринбург, переулок Шаронова
38 фотографий







































