Проект детской
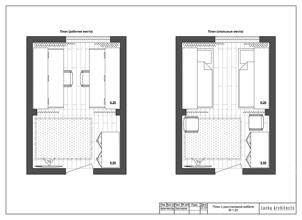
Как разместить на такой скромной площади функциональное пространство для двух маленьких девочек? Ответ прост - поможет мебель-трансформер! Благодаря решению с трансформируемой мебелью мы смогли получить рабочее пространство с индивидуальными столами для каждой из девочек, два полноценных спальных места и даже организовали игровую зону с телевизором и вместительным шкафом для хранения одежды и игрушек. Наш проект доказывает, что даже в не большой комнате можно реализовать практически любые пожелания заказчика.
Год реализации: 2017
г. Санкт-Петербург
5 фотографий






