Проект детской

Другие фотографии в проекте Проект детской

Проект детской
Проект детской
Проект детской
Проект детской

Вопросы к фото 0

Задайте вопрос

Вам ответят эксперты. Пришлем уведомление, когда вам ответят

Проект детской, Санкт-Петербург, дизайн детской, дизайн интерьера, дизайн спб

Владимир

Владимир

Дизайнеры интерьера

Смотреть профиль

0

отзывов

0

Рейтинг

Проект детской

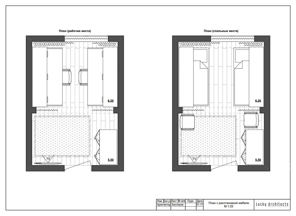
Как разместить на такой скромной площади функциональное пространство для двух маленьких девочек? Ответ прост - поможет мебель-трансформер! Благодаря решению с трансформируемой мебелью мы смогли получить рабочее пространство с индивидуальными столами для каждой из девочек, два полноценных спальных места и даже организовали игровую зону с телевизором и вместительным шкафом для хранения одежды и игрушек. Наш проект доказывает, что даже в не большой комнате можно реализовать практически любые пожелания заказчика.

Вопросы к фото 0