Проект планировки
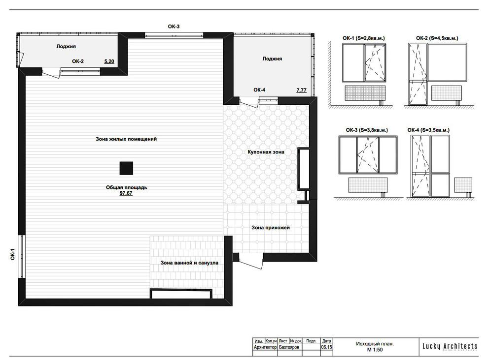
Проект планировки квартиры в доме по ул.Батальонной (г.Волгоград) . В этой квартире открывается прекрасный вид и на Мамаев Курган и на Волгу. Одно из главных пожеланий Заказчика - максимально сохранить обзорность от входной двери на Мамаев Курган. Второе по важности задание - организовать библиотечную зону в центре квартиры. Третье условие - максимальная интеграция в интерьер новой квартиры уже имеющейся мебели. Было еще много пожеланий и все они учтены в проекте. Вашему вниманию представлен согласованный вариант планировки. . . Площадь квартиры: 97,67 кв.м.
Год реализации: 2016
г. Волгоград
3 фотографии




