Проект частного дома в Новой Усмани
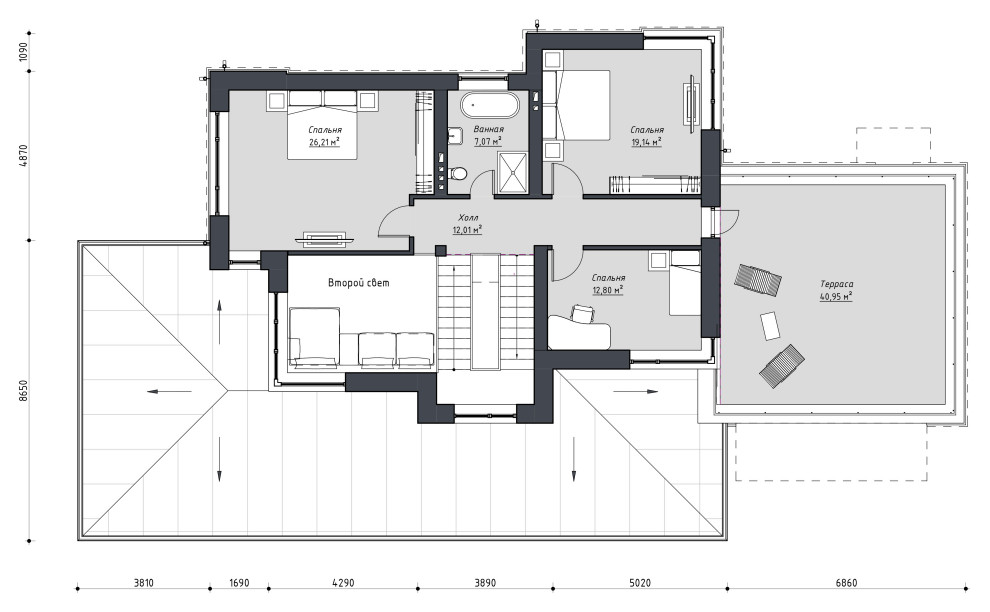
Дом по данному проекту идеально совмещает в себе ощущение уюта, простора и современный фасад. Общая зона дома на первом этаже представляет собой пространство сложной формы, объединяющее кухню и гостиную, спальню на первом этаже можно трансформировать в кабинет, на втором этаже размещены три спальни, а также присутствует выход на террасу. Этот проект дома с гаражом на два автомобиля и двумя просторными террасами на каждом этаже порадует своим комфортом, элегантностью и будет удобен для большой семьи. . .
4 фотографии




