Проект частного дома в Новой Усмани
Юлия

Юлия

Архитекторы

0

Проект частного дома в Новой Усмани

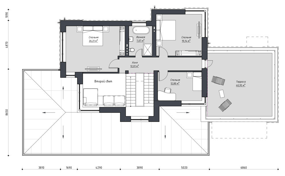
Дом по данному проекту идеально совмещает в себе ощущение уюта, простора и современный фасад. Общая зона дома на первом этаже представляет собой пространство сложной формы, объединяющее кухню и гостиную, спальню на первом этаже можно трансформировать в кабинет, на втором этаже размещены три спальни, а также присутствует выход на террасу. Этот проект дома с гаражом на два автомобиля и двумя просторными террасами на каждом этаже порадует своим комфортом, элегантностью и будет удобен для большой семьи. . .

Другие фотографии в проекте

Проект частного дома в Новой УсманиПроект частного дома в Новой УсманиПроект частного дома в Новой Усмани

Вопросы к фото 0

Задайте вопрос

Вам ответят эксперты. Пришлем уведомление, когда вам ответят