Проект 3-комнатной квартиры в ЖК "Сочи"
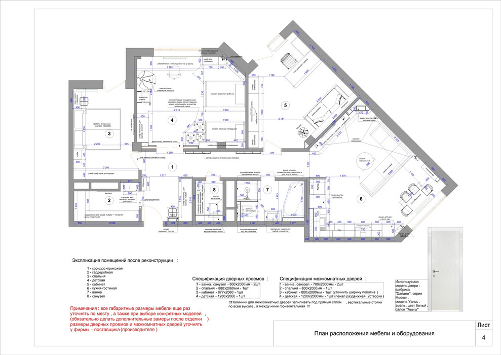
Площадь объекта - 110 кв.м Проект выполнен согласно пожеланиям заказчиков: спальня расположилась в зоне кухни, а кухня стала единым пространством с гостиной. Стиль проекта преимущественно современный с элементами ар деко, в санузлах использованы новые коллекции польской плитки с оригинальной матовой текстурой и необычной формы и размеров мозаика. Межкомнатные двери также подчеркнули стилевое направление интерьера, для данного проекта была выбрана новая модель фабрики dariano. В привычных кремово-коричневых тонах были предложены цветовые сочетания с синим, голубым, бирюзовым оттенками, а также контрастные черные акценты в элементах мебели и декоре.
Год реализации: 2017
Стоимость проектирования: 135 000 ₽
г. Екатеринбург, Авиационная улица
25 фотографий


























