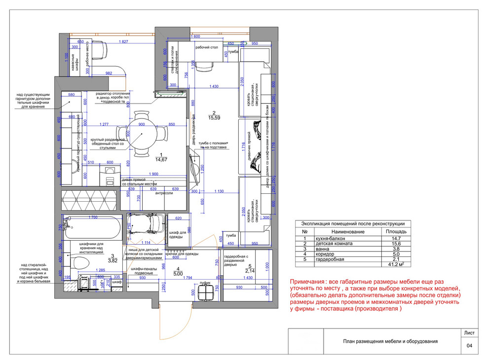
Профиль пользователяПроект-перепланировка 1ки в АкадемическомГод реализации: 2018Стоимость проектирования: 34 999 ₽г. Екатеринбург, улица Краснолесья15 фотографийПоделитьсяСохранитьгардеробнаяПоделитьсяСохранитькоридорПоделитьсяСохранитькоридорПоделитьсяСохранитьбалконПоделитьсяСохранитьбалконПоделитьсяСохранитькухняПоделитьсяСохранитькухняПоделитьсяСохранитькухняПоделитьсяСохранитьваннаПоделитьсяСохранитьваннаПоделитьсяСохранитьдетскаяПоделитьсяСохранитьдетскаяПоделитьсяСохранитьдетскаяПоделитьсяСохранитьпланировочное решениеПоделитьсяСохранитьплан помещения до реконструкцииПоделитьсяСохранить