Проект 1-комнатной квартиры в ЖК "Макаровский Квартал"
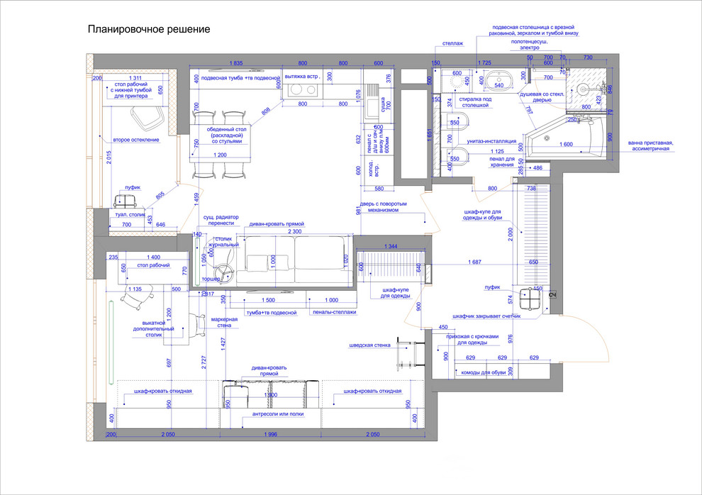
Площадь объекта - 57,5м2. Проект-перепланировка 1-комнатной квартиры в ЖХ "Макаровский квартал". Светлый интерьер кухни-гостиной выполнен с использованием последних модных тенденций в материалах и фактурах - это и текстура мрамора, и медь в мебельных фасадах и аксессуарах, в качестве зонированного освещения использованы световые линии, на балконе по желанию заказчиков организовали рабочее место и небольшой будуар. В детской комнате размещены все необходимые функциональные зоны: игровая, рабочая, зона отдыха, хранения, а для экономии места использована мебель-трансформер.
Год реализации: 2019
Стоимость проектирования: 135 000 ₽
г. Екатеринбург, улица Челюскинцев
14 фотографий















