Проект 0112
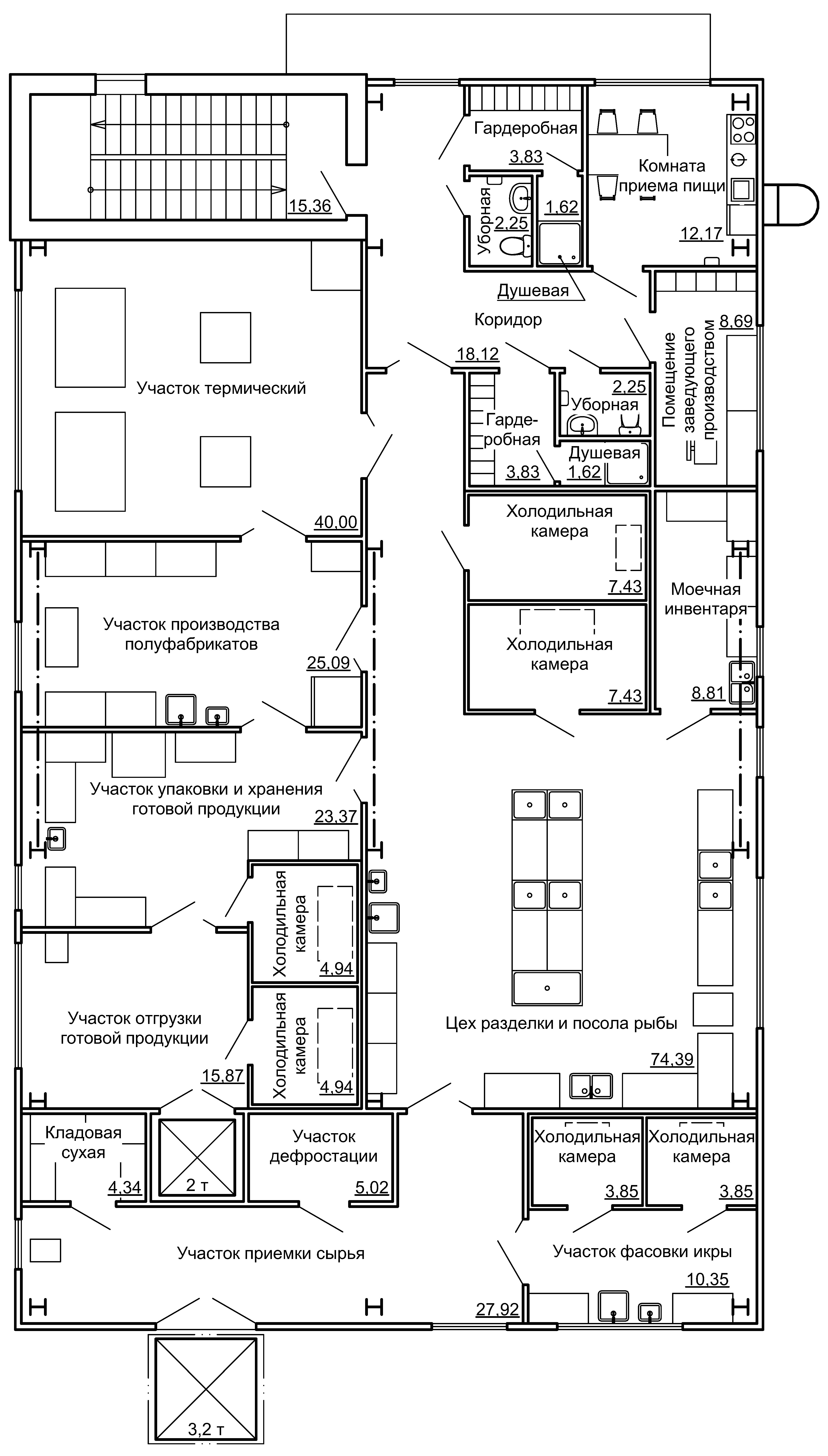
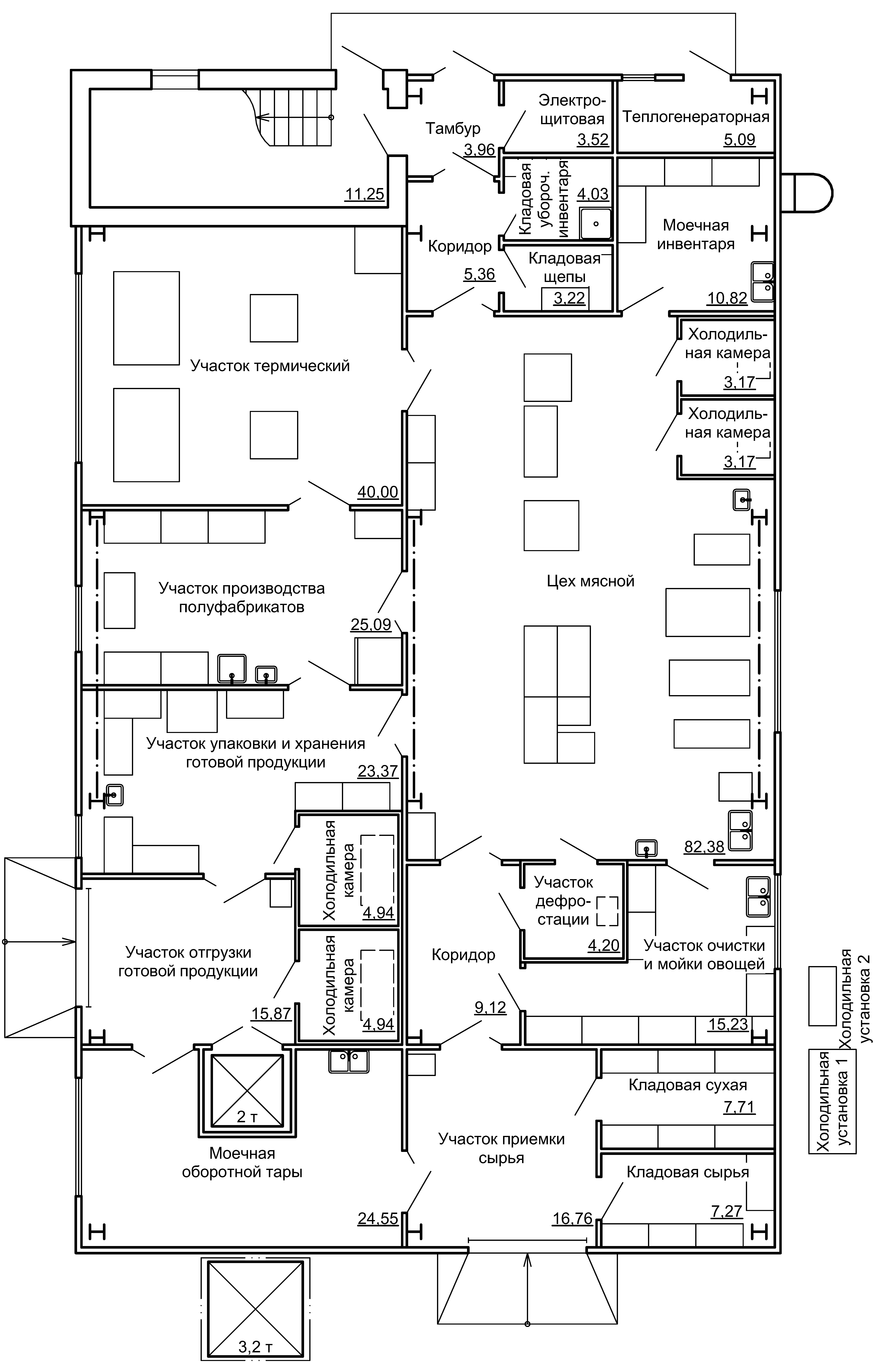
Предприятие по производству мясной и рыбной продукции. Двухэтажный мясоперерабатывающий корпус и одноэтажный холодильник (охлаждаемый склад) в легких металлических конструкциях
Год реализации: 2025
г Самара
11 фотографий
Предприятие по производству мясной и рыбной продукции. Двухэтажный мясоперерабатывающий корпус и одноэтажный холодильник (охлаждаемый склад) в легких металлических конструкциях
11 фотографий
