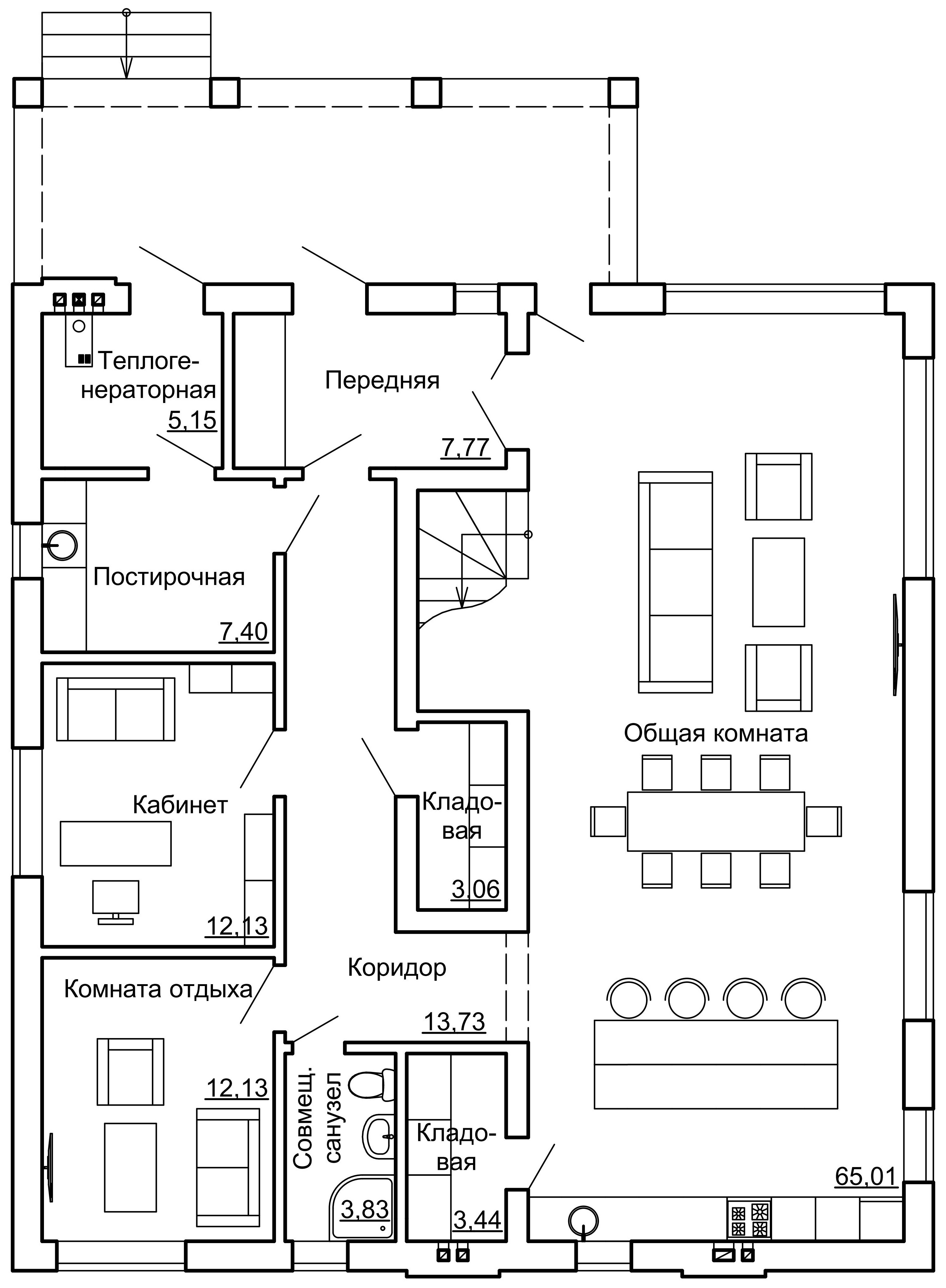
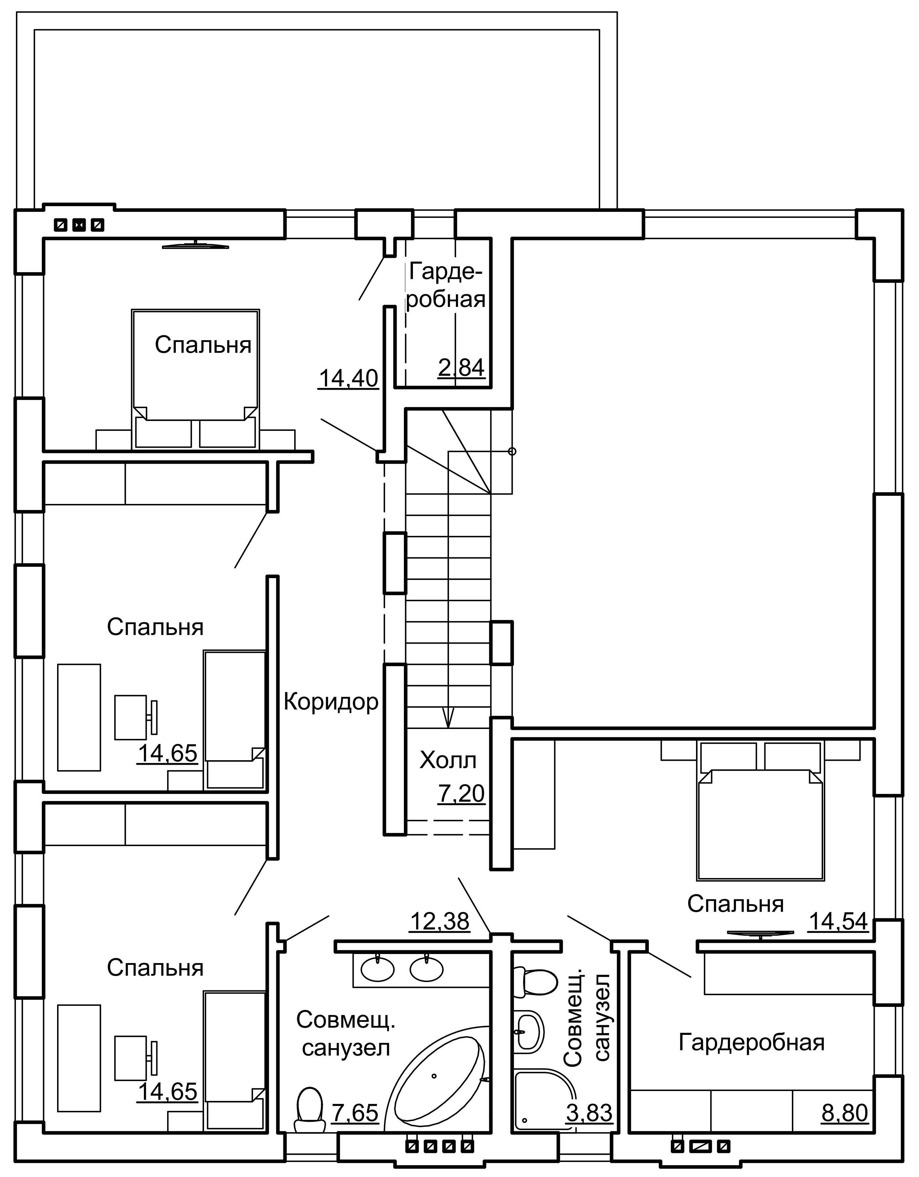
Проект 0083
Двухэтажный одноквартирный 7-комнатный жилой дом со стенами из ячеистого бетона (газобетона)
Год реализации: 2023
Стиль: Минимализм
г Самара
8 фотографий
Двухэтажный одноквартирный 7-комнатный жилой дом со стенами из ячеистого бетона (газобетона)
8 фотографий
