Проект 0044
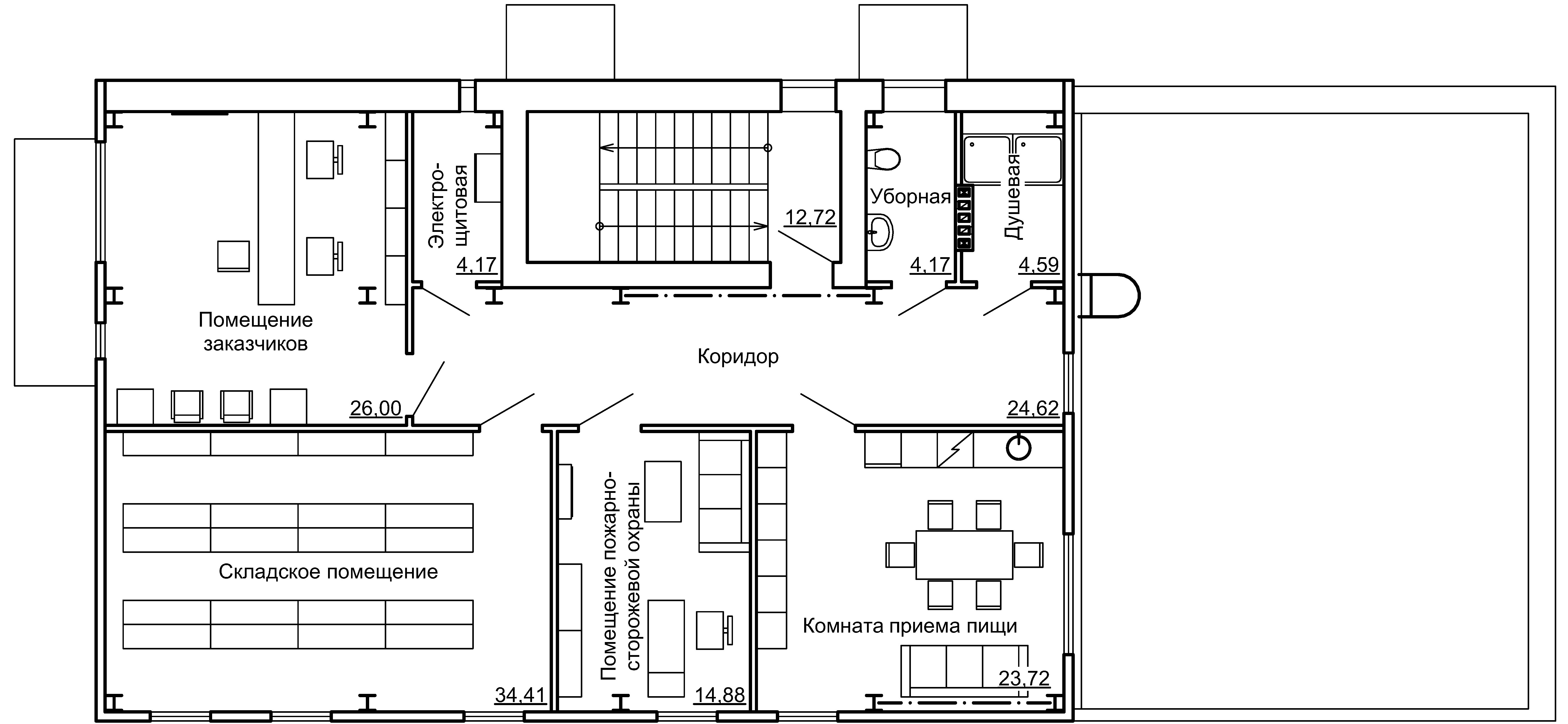
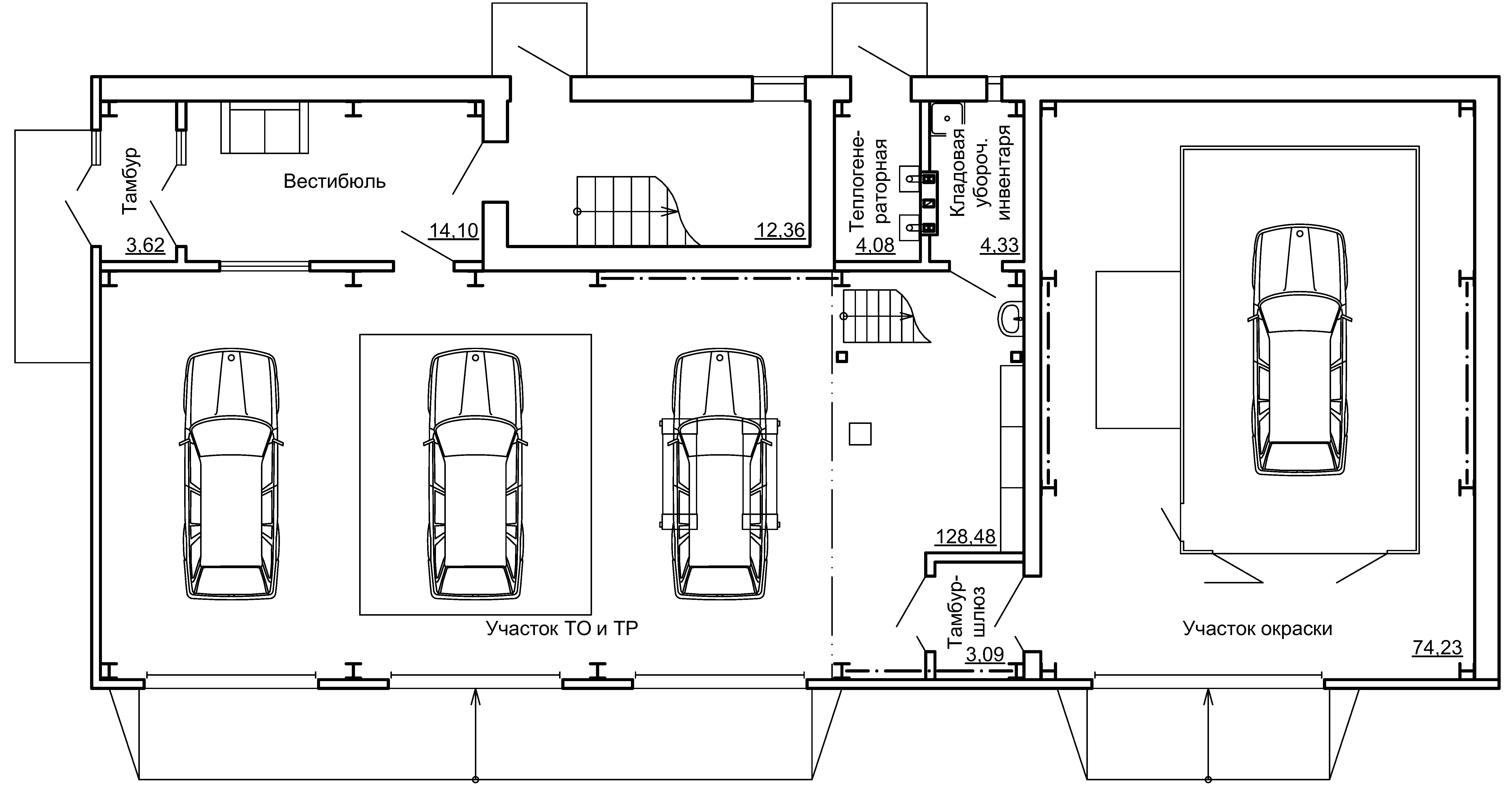
Станция технического обслуживания легковых автомобилей (автосервис) на 4 поста (с участком окраски) в легких металлических конструкциях
Год реализации: 2021
Стиль: Современный
г Самара
11 фотографий
Станция технического обслуживания легковых автомобилей (автосервис) на 4 поста (с участком окраски) в легких металлических конструкциях
11 фотографий
